9/9
Paylaş
Resmi Orjinal Boyutunda Göster
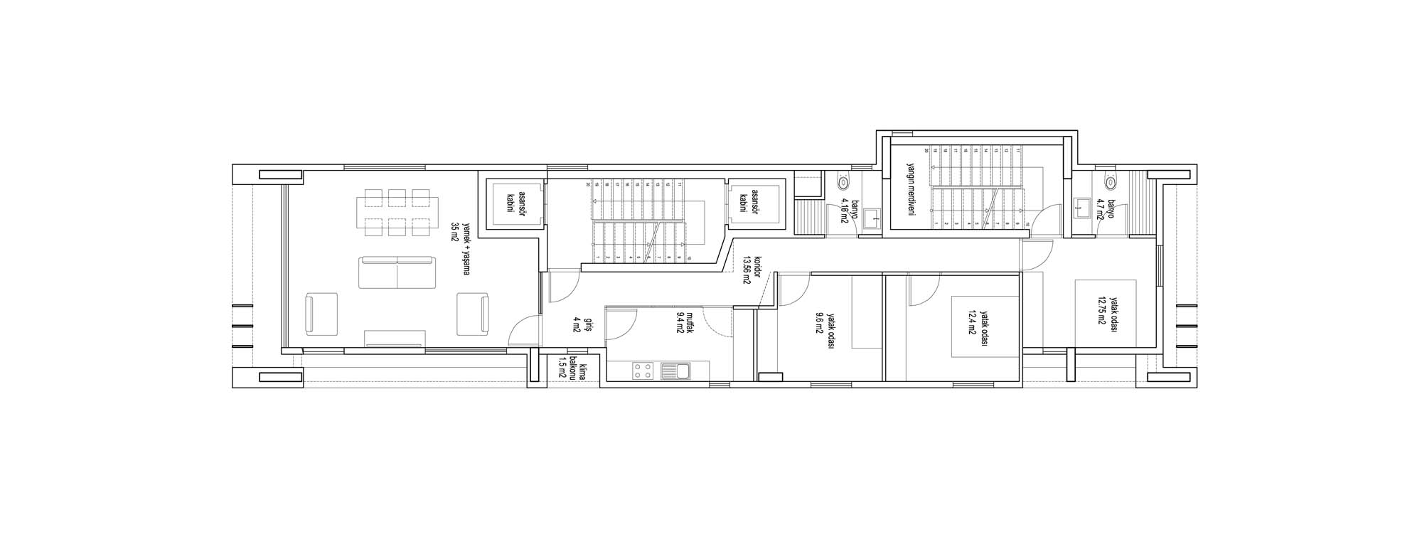
Pervin Apartmanı
Proje Yeri: Kadıköy, İstanbul
Proje Ofisi: Boran Ekinci Mimarlık
Proje Tipi: Apartman
Tasarım Ekibi: Boran Ekinci
İşveren: Güral İnşaat
Yardımcı: Gizem Çakır, Handenur Yazıcı Engin, Bora Bayrakçı, Mürüvvet Gülcan Şahin
Proje Yöneticisi: Boran Ekinci
Proje Başlangıç Yılı: 2013
Proje Bitiş Yılı: 2013
Toplam İnşaat Alanı: 1,900 m²