5/8
Paylaş
Resmi Orjinal Boyutunda Göster
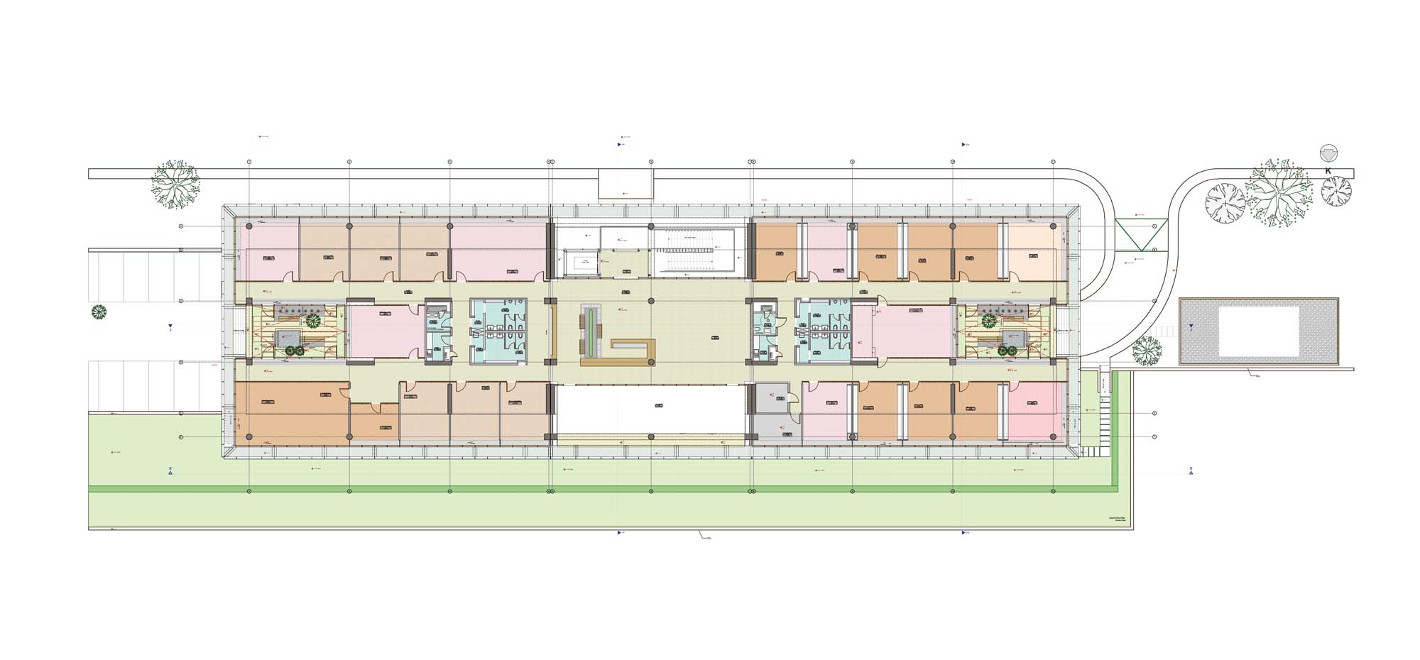
Şişecam Otocam Yönetim Binası
Proje Yeri: Alabuga, Rusya
Proje Ofisi: Boran Ekinci Mimarlık, Erbuğ Mimarlık
Proje Tipi: Ofis
Tasarım Ekibi: Boran Ekinci, Sinan Erbuğ
İşveren: Türkiye Şişe ve Cam Fabrikaları A.Ş.
Yardımcı: Neslihan Şen, Yasemin Gökkaya İskenderoğlu, Fatma Bilgen Şalap
Proje Yöneticisi: Boran Ekinci, Sinan Erbuğ
Statik Projesi: Nodus Mühendislik
Mekanik Projesi: Genel Mühendislik
Elektrik Projesi: GEO Elektrik Mühendislik
Proje Başlangıç Yılı: 2012
Proje Bitiş Yılı: 2012
Toplam İnşaat Alanı: 3,000 m²