16/17
Paylaş
Resmi Orjinal Boyutunda Göster
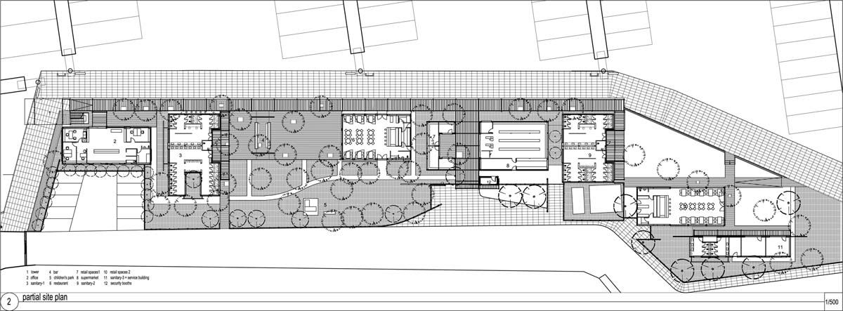
Ece Marina Fethiye
Proje Yeri: Fethiye, Muğla
Proje Ofisi: Boran Ekinci Mimarlık
Proje Tipi: Diğer Rekreasyon Yapıları, Deniz Ulaşım Yapıları
Tasarım Ekibi: Boran Ekinci
İşveren: Celal Ece
Yardımcı: Ela Ardıçoğlu, Nilay Arslan, Muharrem Çağlan
Statik Projesi: Mustafa Şıkman
Mekanik Projesi: Ece Mühendislik
Elektrik Projesi: Şimşekalp Yapı Enerji
Proje Bitiş Yılı: 2003
İnşaat Bitiş Yılı: 2003