3/3
Paylaş
Resmi Orjinal Boyutunda Göster
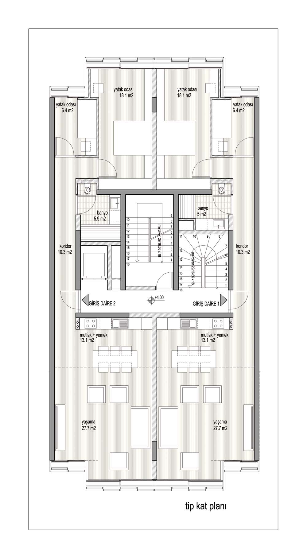
Nişantaşı Apartmanı
Proje Yeri: Beşiktaş, İstanbul
Proje Ofisi: Boran Ekinci Mimarlık, Hakan Dalokay Mimarlık
Proje Tipi: Apartman
Tasarım Ekibi: Boran Ekinci, Hakan Dalokay
Yardımcı: Handenur Yazıcı Engin
Proje Yöneticisi: Boran Ekinci, Hakan Dalokay
Proje Başlangıç Yılı: 2012
Proje Bitiş Yılı: 2012