14/14
Paylaş
Resmi Orjinal Boyutunda Göster
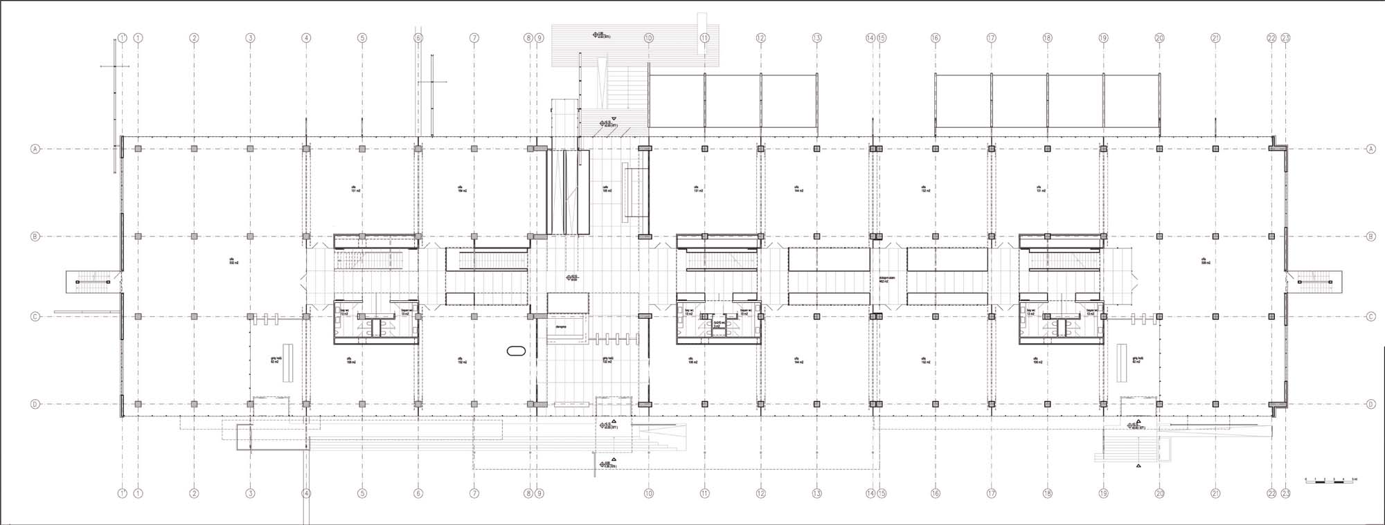
ODTÜ Ar-Ge Binası
Proje Yeri: Ankara, Çankaya
Proje Ofisi: Boran Ekinci Mimarlık
Proje Tipi: Ar-Ge Binası
Tasarım Ekibi: Boran Ekinci
İşveren: Orta Doğu Teknik Üniversitesi Geliştirme Vakfı
Yardımcı: Ufuk Buluttekin, Nilay Arslan, Ela Ardıçoğlu, Muharrem Çağlar
Ana Yüklenici: EBİ İnşaat
Statik Projesi: Ural Mühendislik
Mekanik Projesi: GMD Mühendislik
Elektrik Projesi: Matris Mühendislik
Proje Başlangıç Yılı: 2003
Proje Bitiş Yılı: 2003,
İnşaat Başlangıç Yılı: 2004
İnşaat Bitiş Yılı: 2004