16/26
Paylaş
Resmi Orjinal Boyutunda Göster
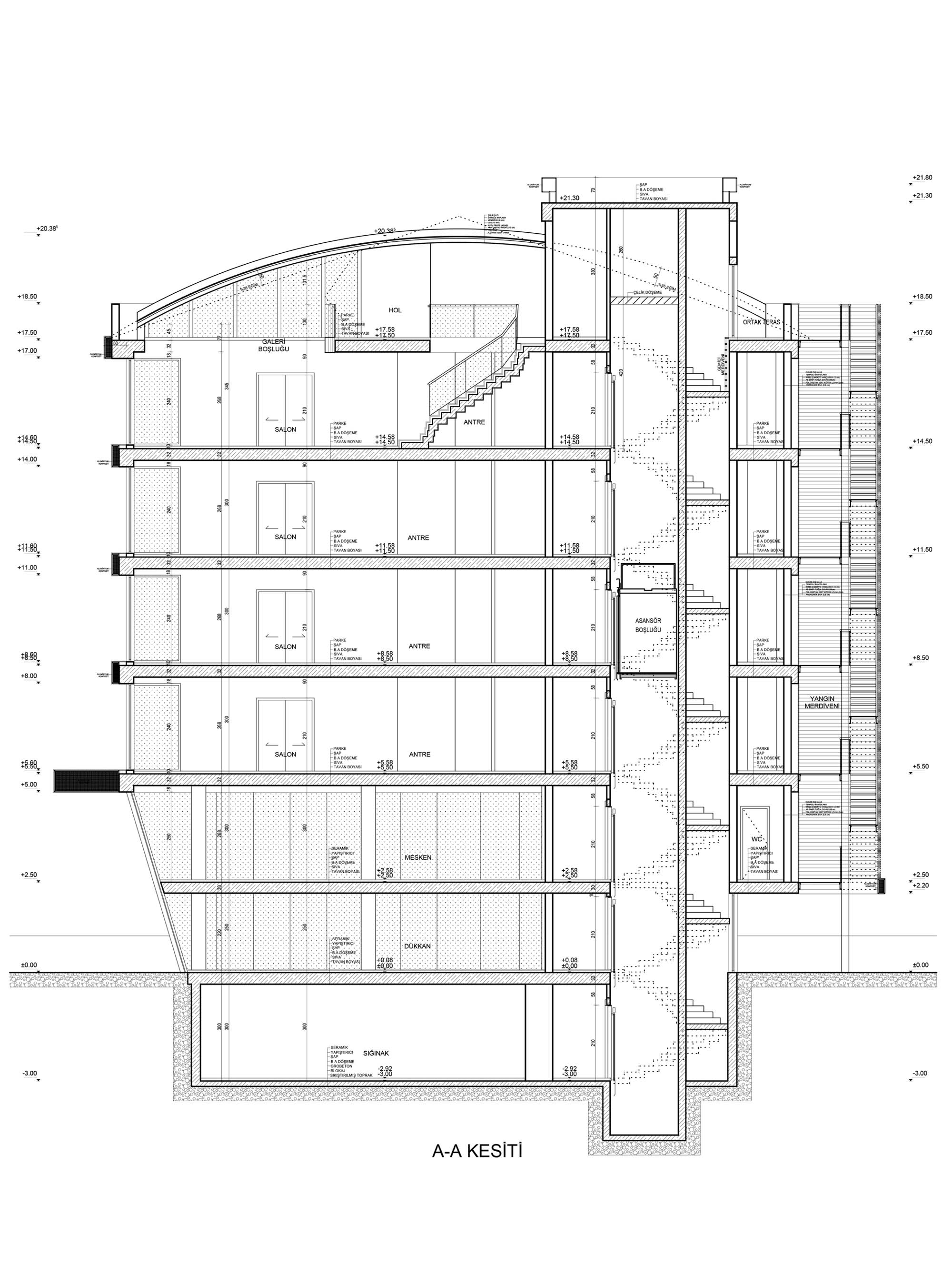
KA Port
Proje Yeri: Konyaaltı, Antalya
Proje Ofisi: DNA Mimarlık Nail Atasoy
Proje Tipi: Apartman
Tasarım Ekibi: Nail Atasoy
İşveren: Ka Tasarım
Yardımcı: Hülya Tuncer, Sümeyya Yeğiner, Emine Dönderici, Arzu Atasoy
Ana Yüklenici: Ka Tasarım
İç Mekan Projesi: DNA Mimarlık Nail Atasoy
Statik Projesi: Çetin Durdu
Mekanik Projesi: Taner Tazegül
Elektrik Projesi: Hikmet Demir
Proje Başlangıç Yılı: 2012
Proje Bitiş Yılı: 2012
İnşaat Başlangıç Yılı: 2012
İnşaat Bitiş Yılı: 2012
Arsa Alanı: 934 m²
Toplam İnşaat Alanı: 1,935 m²