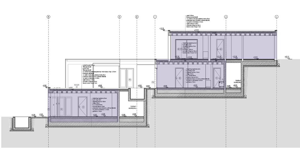
Kesit
7/7
Paylaş
Resmi Orjinal Boyutunda Göster
Gümüşlük Müşkülüm Çiftliği
Project Location: Muğla, Bodrum
Project Office: TRafo-Mimarlar
Project Type: Housing Complex
Proje Tipi Grubu: Konut
Tasarım Ekibi: İpek Yürekli, Suna Birsen Otay, Arda İnceoğlu, Deniz Aslan, Sevim Aslan
Employer: Tekfen-Oz
Project Start Date: 2007
Construction Start Date: 2010
Building Plot Area: 24500 m2