11/23
Paylaş
Resmi Orjinal Boyutunda Göster
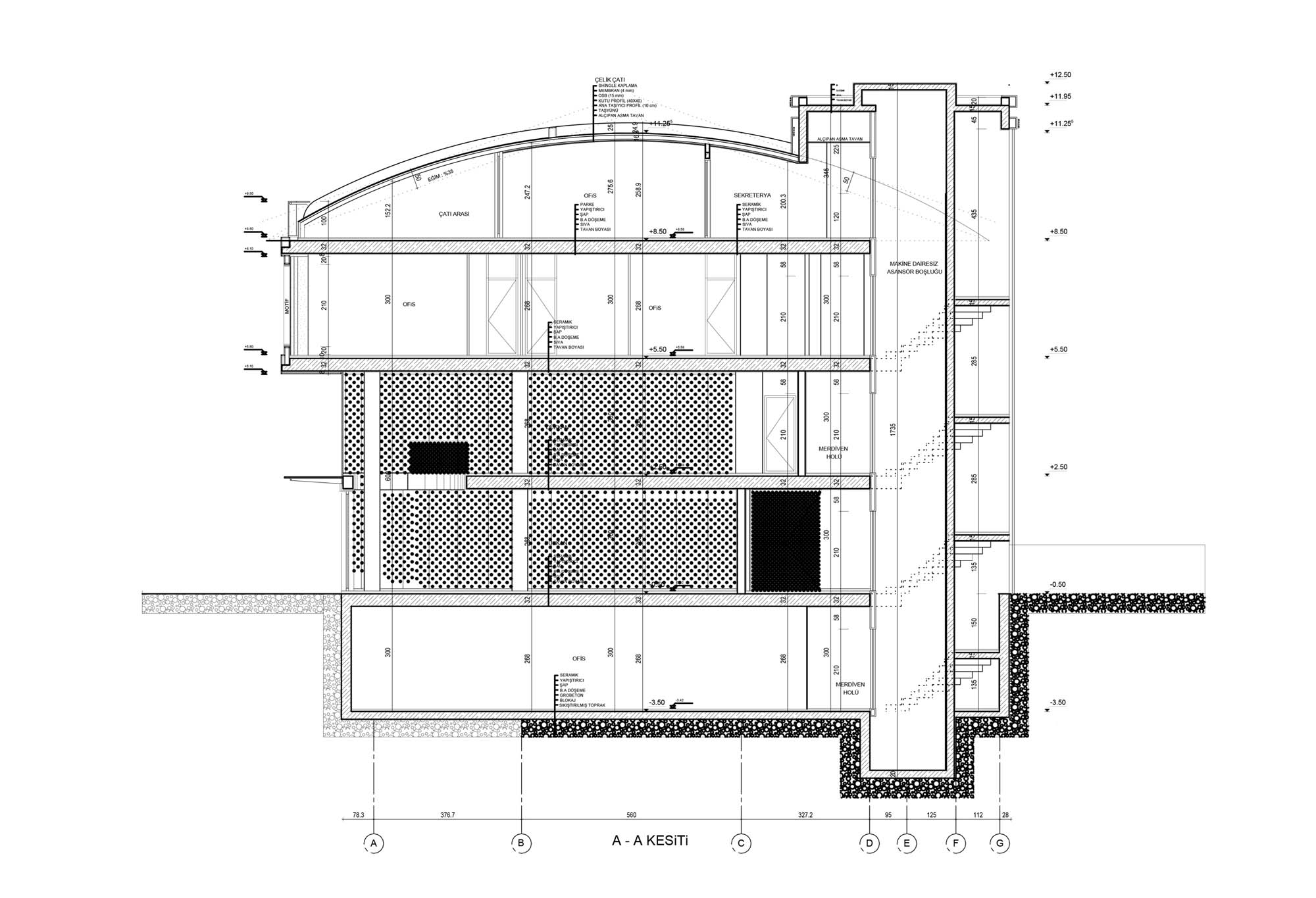
BMK İş Merkezi
Proje Yeri: Muratpaşa, Antalya
Proje Ofisi: DNA Mimarlık Nail Atasoy
Proje Tipi: Ofis
Tasarım Ekibi: Nail Atasoy
İşveren: BMK İnşaat
Yardımcı: Hülya Tuncer, Sümeyya Yeğiner, Emine Dönderici, Arzu Atasoy
Ana Yüklenici: BMK İnşaat
İç Mekan Projesi: DNA Mimarlık Nail Atasoy
Proje Yöneticisi: Nail Atasoy
Statik Projesi: Akın Akıncı
Mekanik Projesi: Taner Tazegül
Elektrik Projesi: Hikmet Demir
Proje Başlangıç Yılı: 2012
Proje Bitiş Yılı: 2012
İnşaat Başlangıç Yılı: 2012
Arsa Alanı: 433 m²
Toplam İnşaat Alanı: 637 m²