18/28
Paylaş
Resmi Orjinal Boyutunda Göster
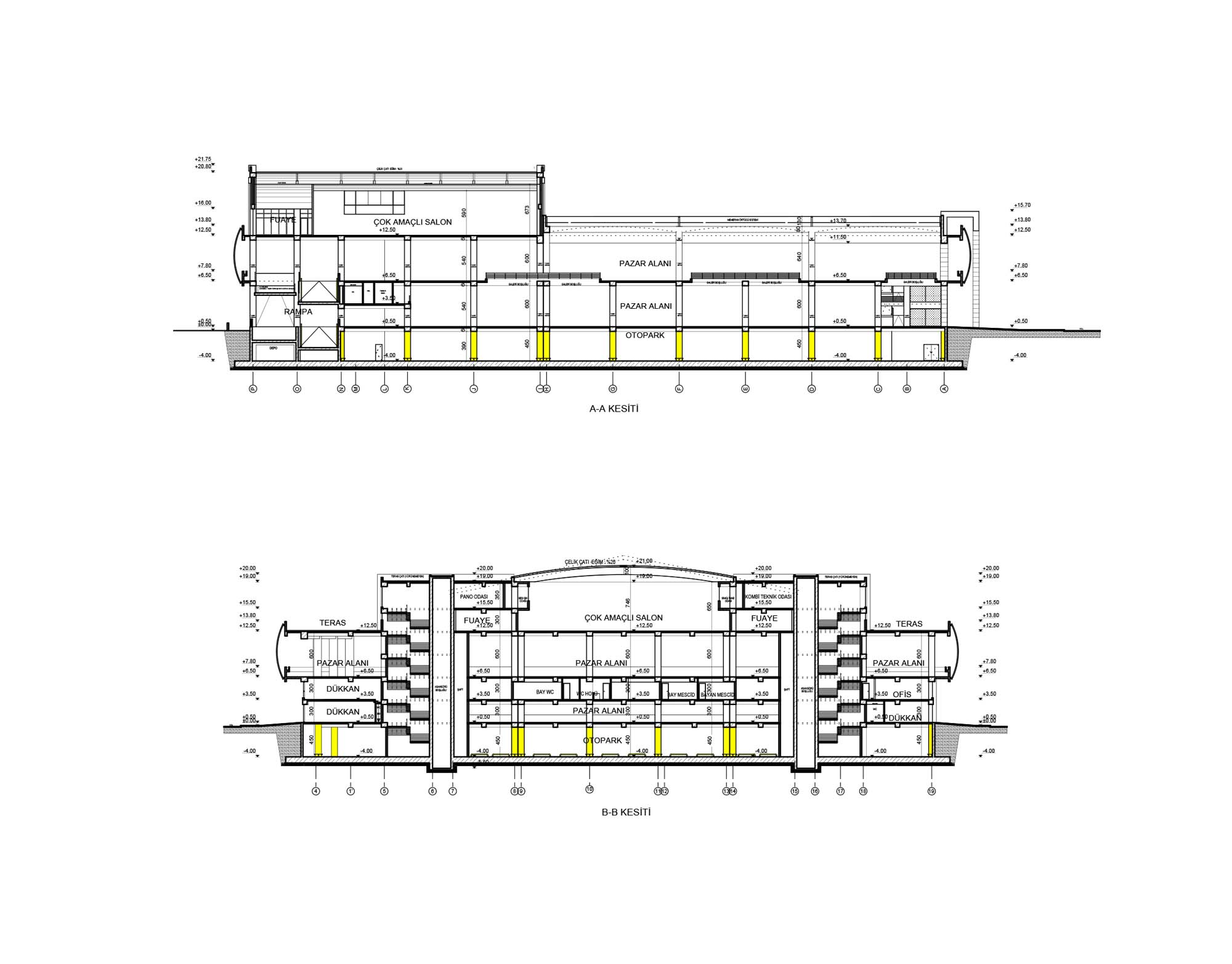
Bucak Kapalı Pazar ve Kültür Merkezi
Project Location: Bucak, Burdur
Project Office: DNA Mimarlık Nail Atasoy
Project Type: Pazar Yeri, Cultural Center
Proje Tipi Grubu: Commercial
Tasarım Ekibi: Nail Atasoy
Employer: Bucak Belediyesi
Yardımcı: Hülya Tuncer, Sümeyya Yeğiner, Emine Dönderici, Arzu Atasoy
Ana Yüklenici: Bucak Belediyesi
Projcet Manager: DNA Mimarlık Nail Atasoy
Structural Project: Çetin Durdu
Mechanical Project: Isıtek
Electrical Project: ÜTK Elektirik
Plumbing Project: Isıtek
Project Start Date: 2012
Project End Date: 2012
Construction Start Date: 2013