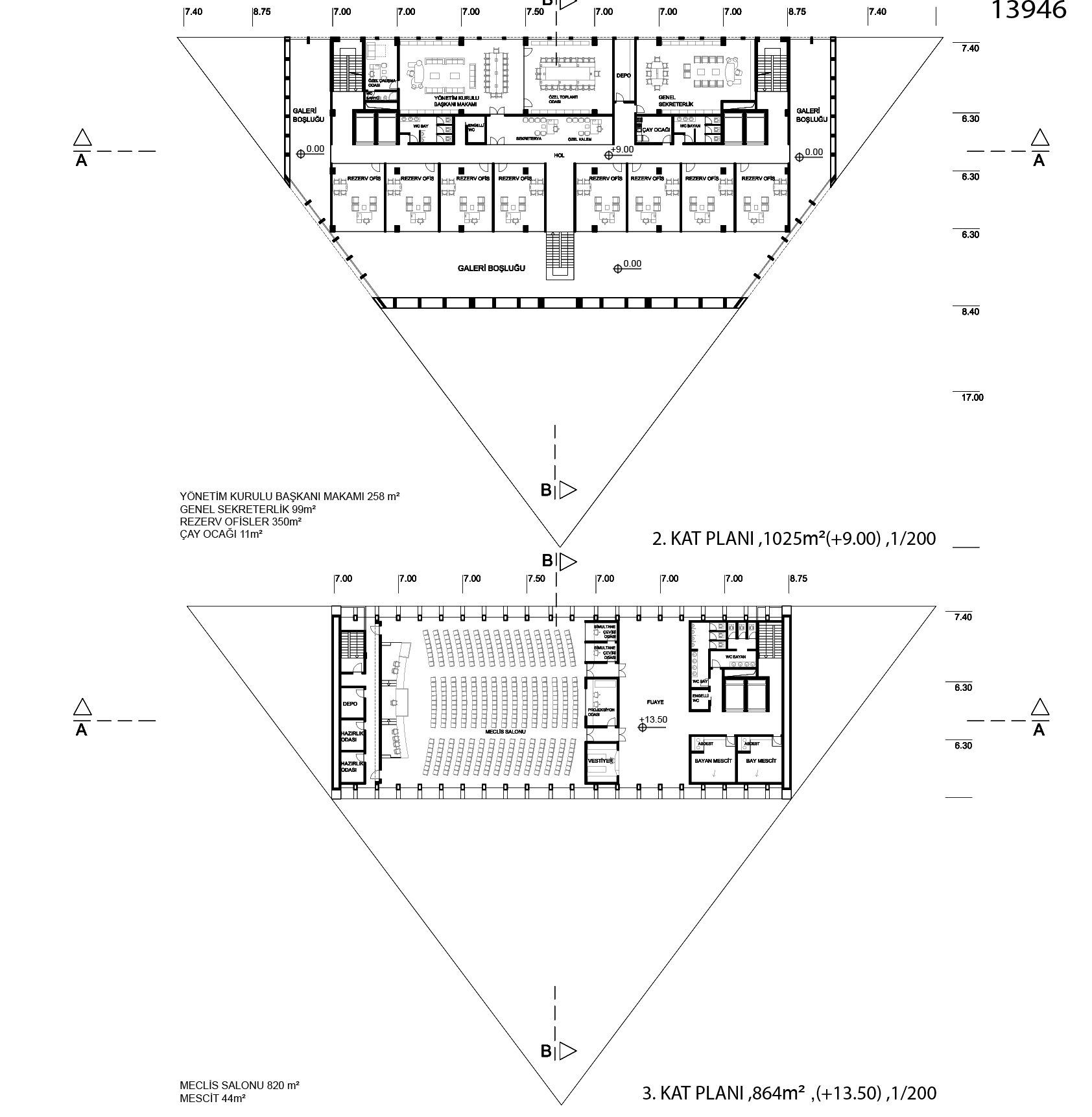
2. 3. KATLAR
11/24
Paylaş
Resmi Orjinal Boyutunda Göster
Katılımcı Proje
Proje Yeri: Kayseri
Proje Tipi: Ofis
Proje Tipi Grubu: Katılımcı
Tasarım Ekibi: Selim Senin