4/14
Paylaş
Resmi Orjinal Boyutunda Göster
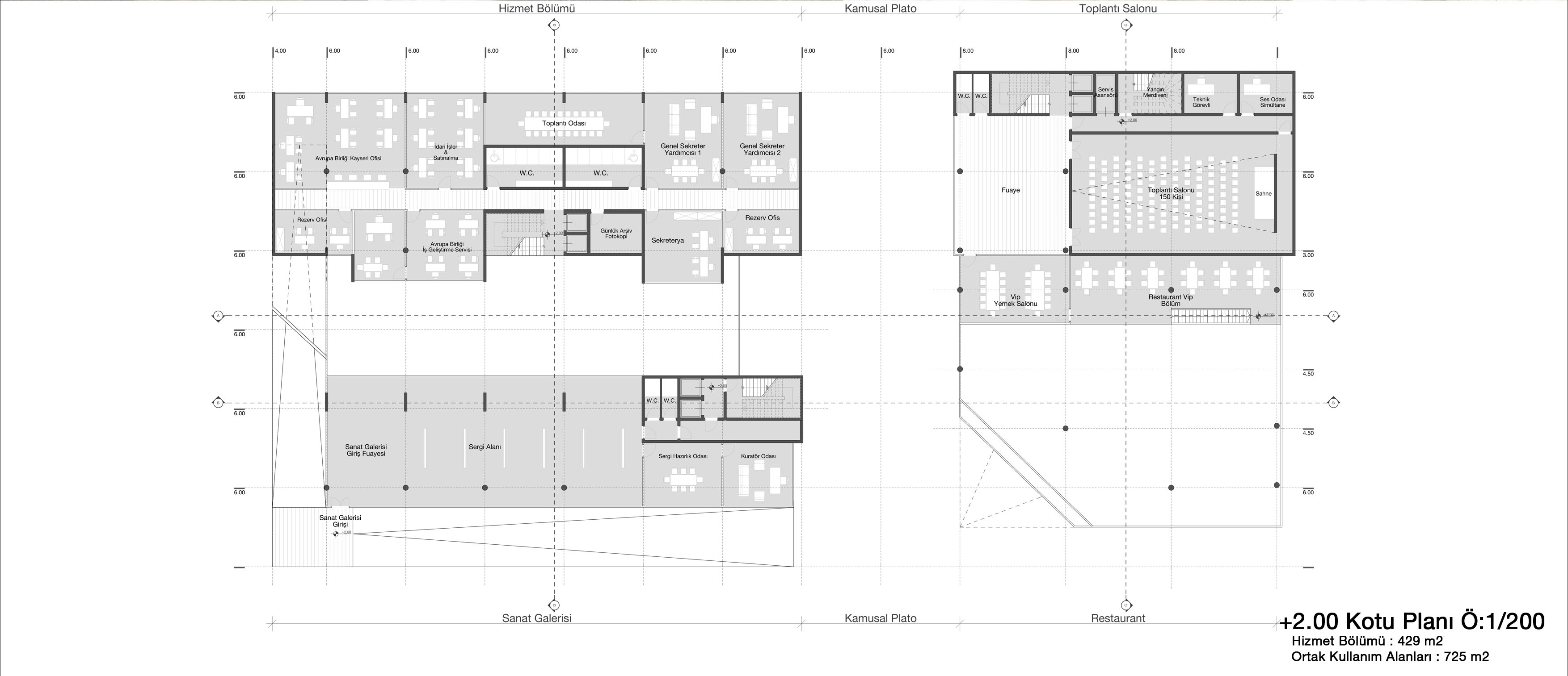
13572 - Kayseri Ticaret Odası Hizmet Binası Ulusal Mimari Fikir Yarışması
Proje Yeri: Kayseri
Proje Tipi: Ofis
Proje Tipi Grubu: Katılımcı
Tasarım Ekibi: Mete Keskin, Esra Yılmaz Keskin, Alperen Türk, Yağmur Arıcı