10/20
Paylaş
Resmi Orjinal Boyutunda Göster
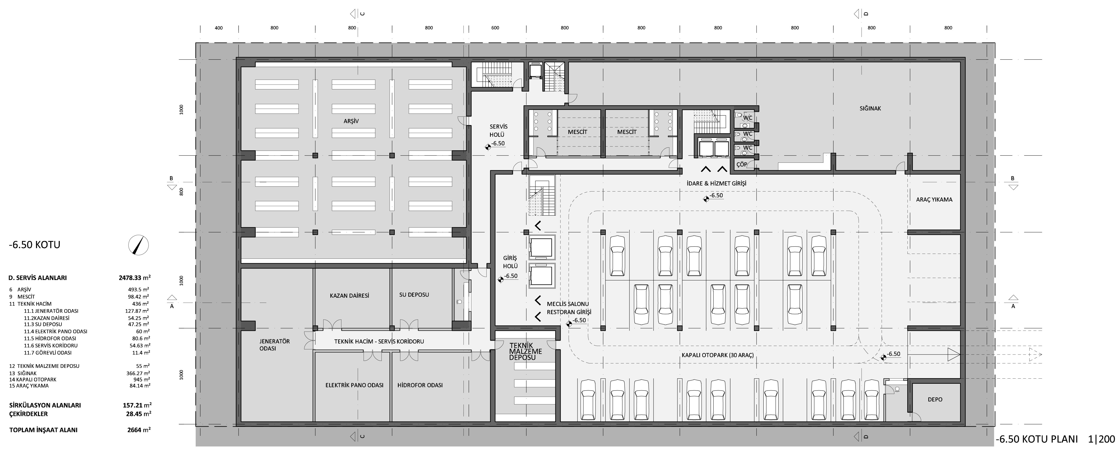
Katılımcı, Kayseri Ticaret Odası Hizmet Binası Ulusal Mimari Fikir Yarışması
Proje Yeri: Kayseri
Proje Tipi: Ofis
Proje Tipi Grubu: Katılımcı
Tasarım Ekibi: Lebriz Atan Karaatlı, Sacit Arda Karaatlı