45/47
Paylaş
Resmi Orjinal Boyutunda Göster
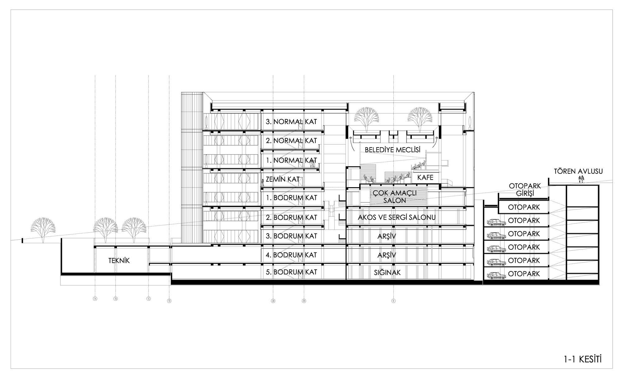
Küçükçekmece Belediyesi Yeni Hizmet Binası
Proje Yeri: Küçükçekmece, İstanbul
Proje Ofisi: Mutlu Çilingiroğlu MİAR Mimarlık Bürosu
Proje Tipi: Belediye Hizmet Binası
Proje Tipi Grubu: Kamu
Tasarım Ekibi: Mutlu Çilingiroğlu
İşveren: Küçükçekmece Belediyesi
Danışman: Duygu Erten, TURKECO İnşaat, Priedemann Cephe Danışmanlığı Tic.Ltd. Şti., Ekomim Ekolojik Mimarlık, Abdurrahman Kılıç, Mete İncecik
Yardımcı: Göksel Kılınç, Tülin Ulaş, Meltem Ergüler, Dağhan Çam, Merve İpek, Hüseyin Penbeoğlu, Betül Alioğlu
Ana Yüklenici: Yeni Yapı
Peyzaj Mimarlığı: Arzu Nuhoğlu Peyzaj Tasarım
İç Mekan Projesi: Arif Özden, Tanju Özelgin, Mutlu Çilingiroğlu
Proje Yöneticisi: Küçükçekmece Belediyesi, Seyfullah Demirel, Tuncay Gürcan, Ferit Kahraman, Şerafettin Mataracı
Aydınlatma Projesi: ZKLD Studio
Statik Projesi: İsmet Babuş Mühendislik
Mekanik Projesi: GN Mühendislik
Elektrik Projesi: HB Teknik Elektrik Mühendislik
Yangın Güvenlik Danışmanı: Abdurrahman Kılıç
Fotoğraf: Cemal Emden
Proje Başlangıç Yılı: 2011
Proje Bitiş Yılı: 2013
İnşaat Başlangıç Yılı: 2013
İnşaat Bitiş Yılı: 2014
Arsa Alanı: 15.000 m2
Toplam İnşaat Alanı: 40.000 m²