5/22
Paylaş
Resmi Orjinal Boyutunda Göster
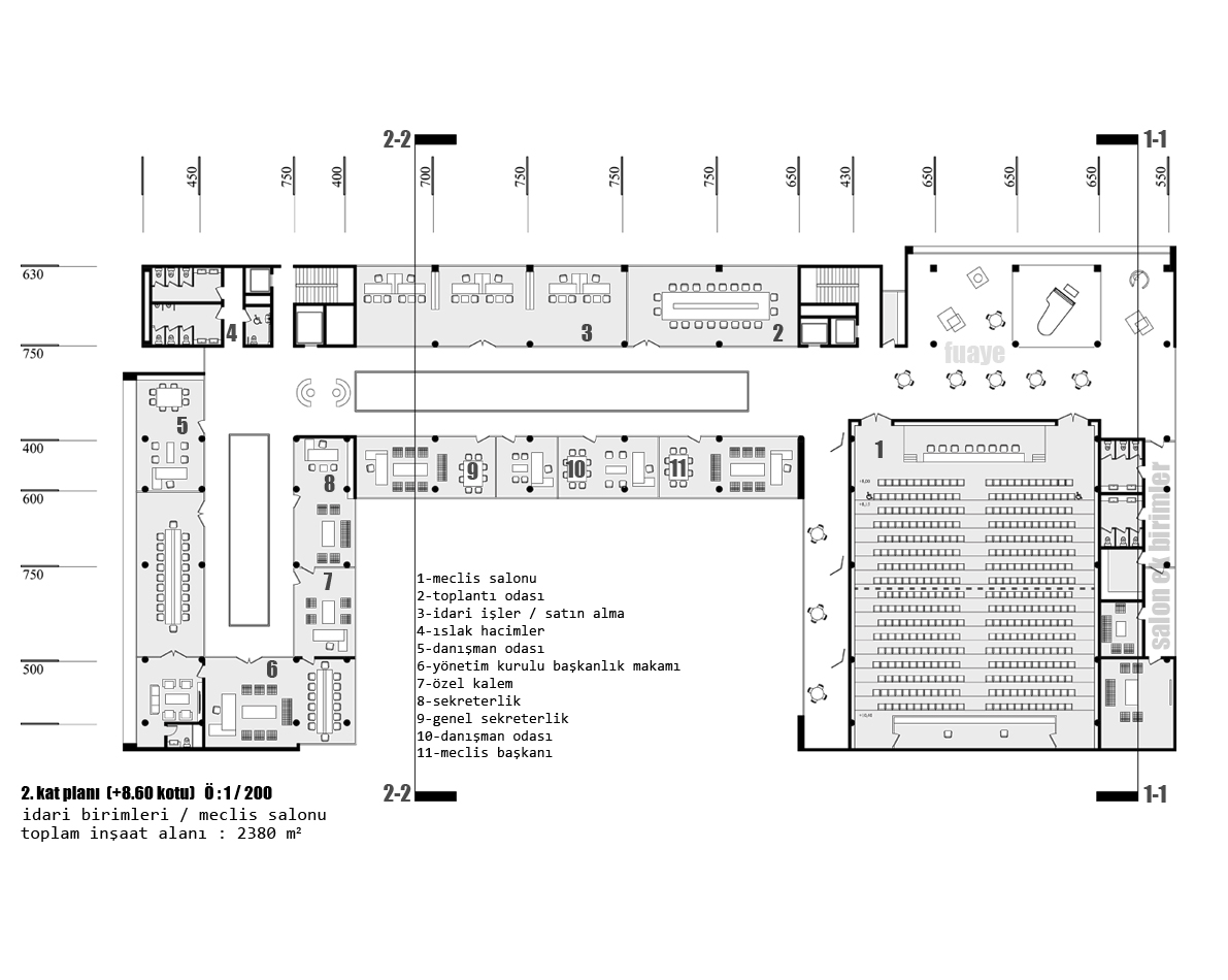
Kayseri Ticaret Odası Hizmet Binası Ulusal Mimari Fikir Yarışması
Proje Yeri: Kayseri
Proje Ofisi: Eren Tümer Mimarlık Ofisi [ETMO]
Tasarım Ekibi: Eren Tümer, Tolga Taşkın, Emrah Mehmet Güllüoğlu