7/21
Paylaş
Resmi Orjinal Boyutunda Göster
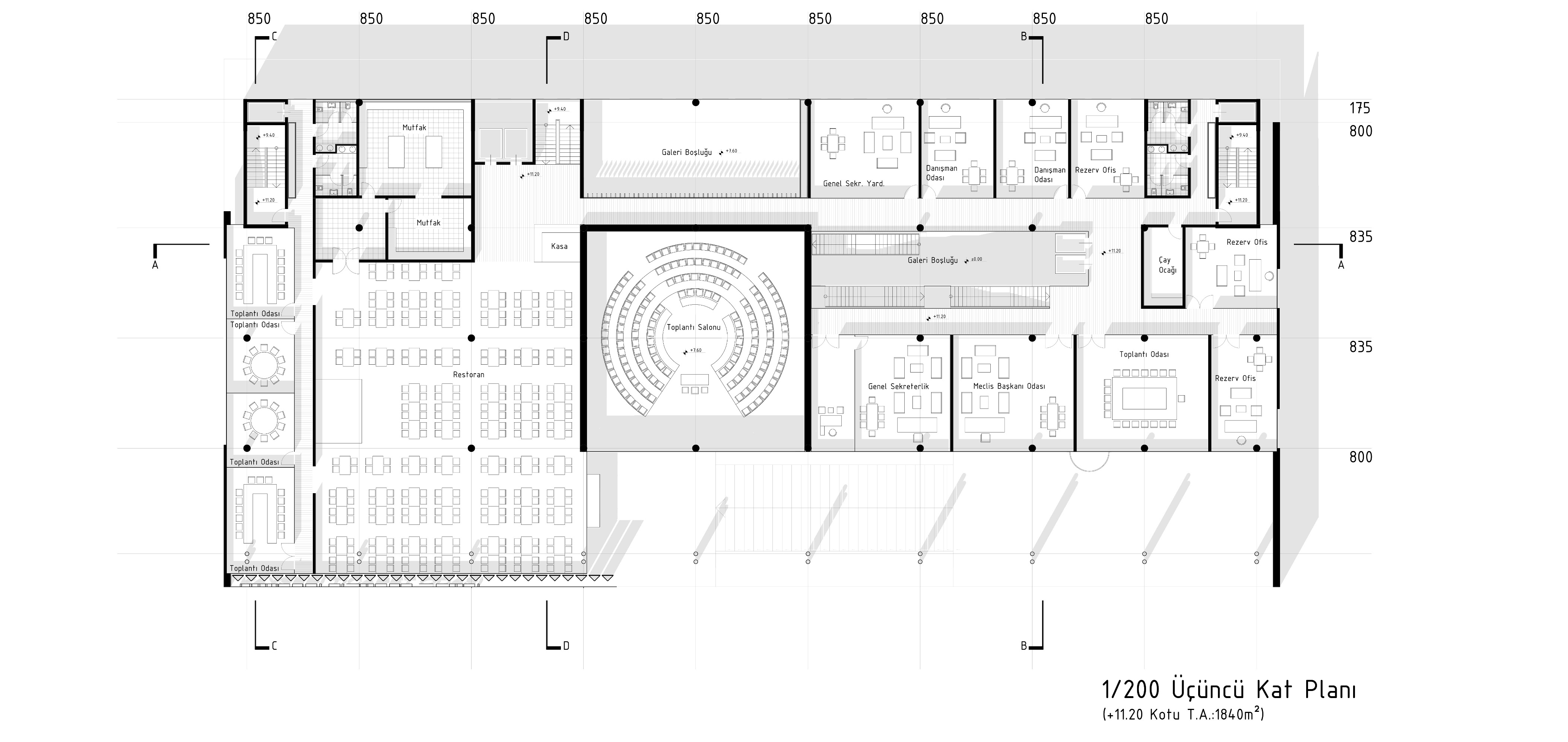
Eşdeğer Mansiyon - Kayseri Ticaret Odası Hizmet Binası Ulusal Mimari Fikir Yarışması
Project Location: Kayseri
Project Type: Offices
Proje Tipi Grubu: Mansiyon
Tasarım Ekibi: Can Şimşek, Mustafa Köse, Faik Özgür Demirkılıç