12/13
Paylaş
Resmi Orjinal Boyutunda Göster
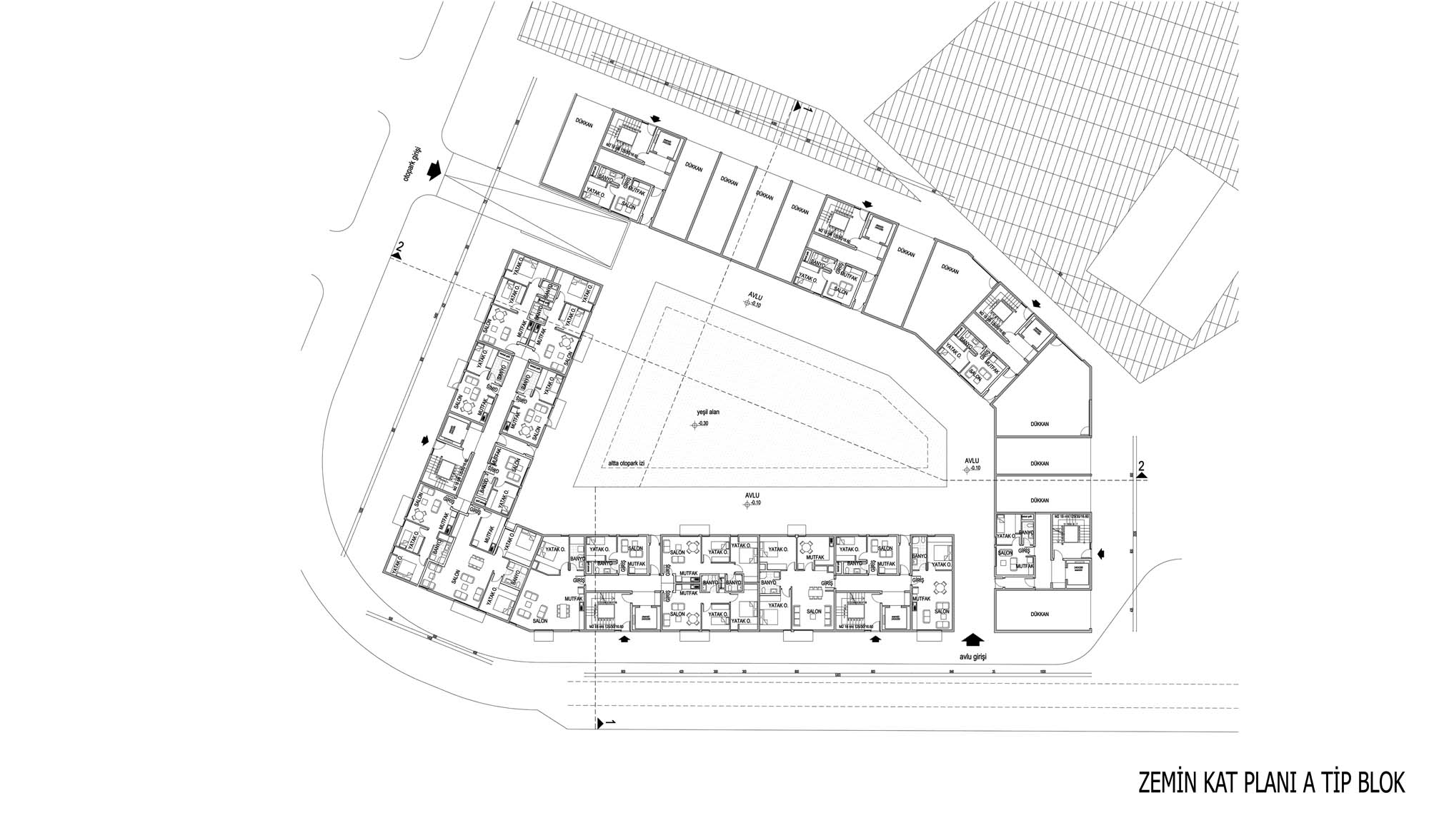
Ege Mahallesi Kentsel Dönüşüm Projesi
Project Location: İzmir
Project Office: TH ve İdil Mimarlık
Project Type: Urban Design
Proje Tipi Grubu: Urban Design
Tasarım Ekibi: Hasan Özbay, Tamer Başbuğ, Baran İdil, Aslı Özbay
Employer: İzmir Büyükşehir Belediyesi
Structural Project: Ergun Dinçer
Mechanical Project: Metin Güre
Electrical Project: A. Levent Ünal
Project Start Date: 2013
Project End Date: 2013
Total Construction Area: 162, 853 m2