6/9
Paylaş
Resmi Orjinal Boyutunda Göster
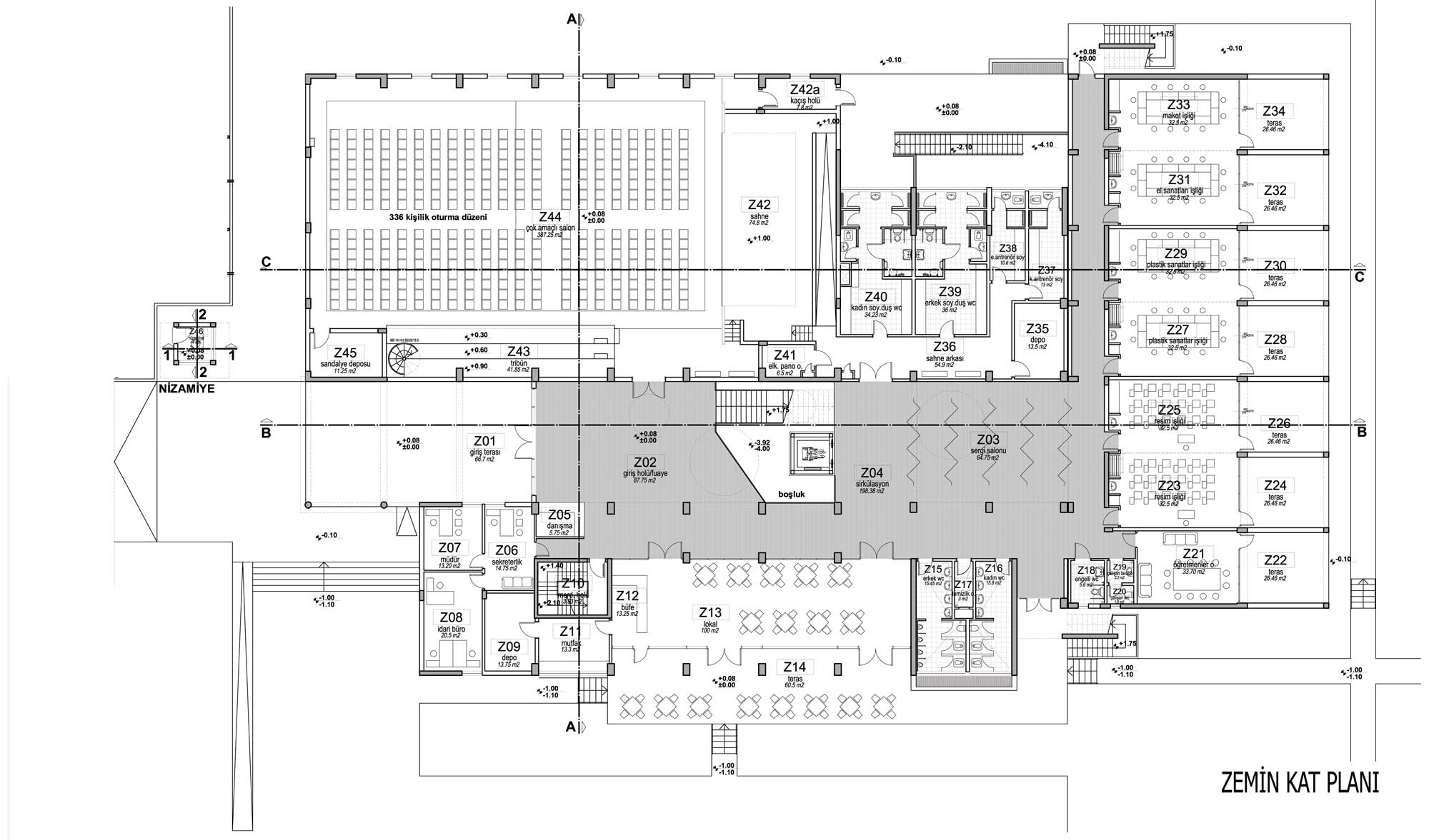
Gaziantep Gençlik Merkezi
Proje Yeri: Gaziantep
Proje Ofisi: TH ve İdil Mimarlık
Proje Tipi: Sosyal Tesis
Proje Tipi Grubu: Kültür
Tasarım Ekibi: Hasan Özbay, Tamer Başbuğ, Baran İdil, Aslı Özbay
İşveren: Gençlik ve Spor Bakanlığı
Statik Projesi: M. Atilla Eser
Mekanik Projesi: Ünal Karakoyunlu
Elektrik Projesi: Ali Gündüz
Proje Başlangıç Yılı: 2010
Toplam İnşaat Alanı: 3,527 m2