11/15
Paylaş
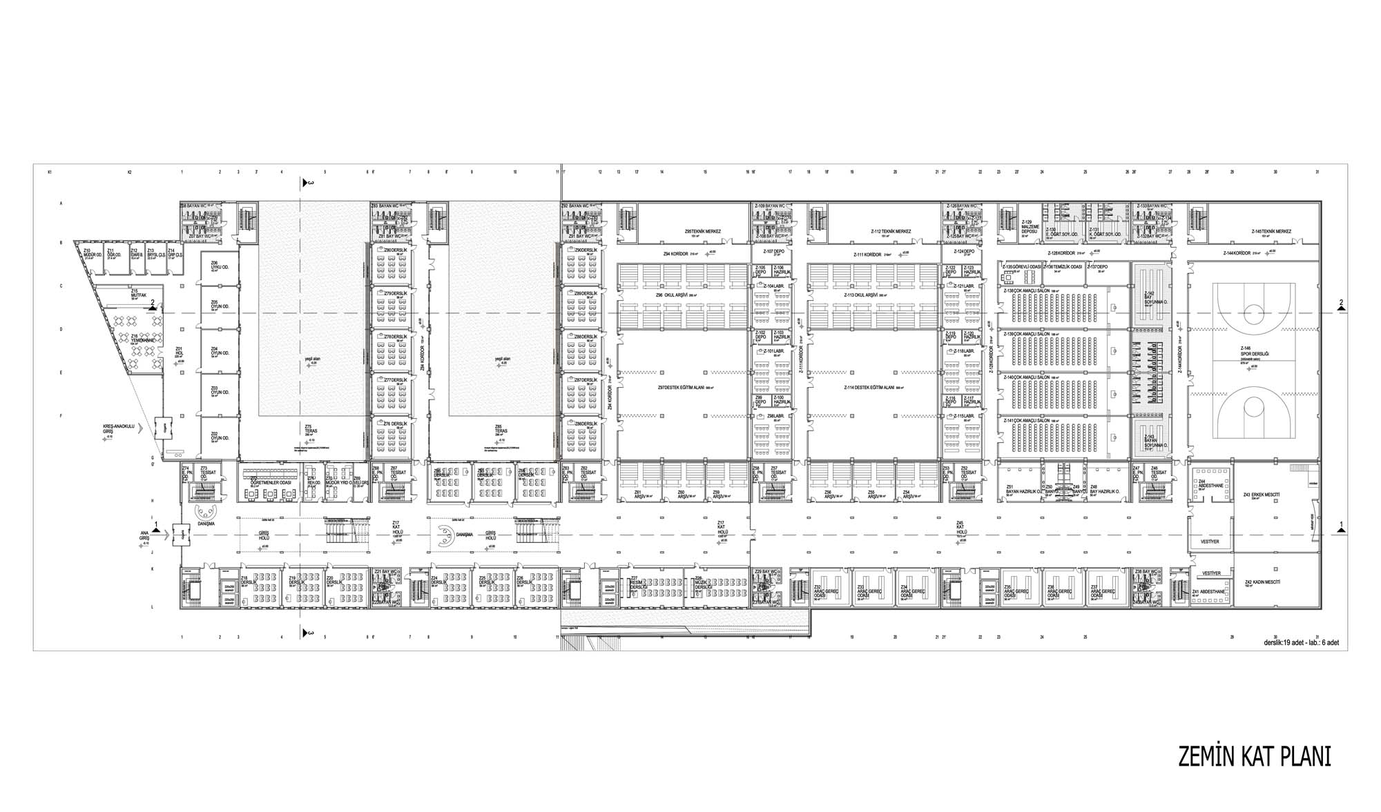
Resmi Orjinal Boyutunda Göster
Katılımcı, MEB Eğitim Kampüsleri Ön Seçimli Mimari Proje Yarışması, Kepez
Project Location: Antalya
Project Office: TH ve İdil Mimarlık, SCRA Mimarlık
Project Type: High School
Proje Tipi Grubu: Eğitim
Tasarım Ekibi: Hasan Özbay, Tamer Başbuğ, Baran İdil, Aslı Özbay, Ramazan Avcı, Seden Cinasal Avcı
Employer: Milli Eğitim Bakanlığı (MEB)
Peyzaj Mimarlığı: Serpil Öztekin
Structural Project: M. Atilla Eser
Mechanical Project: Ünal Karakoyunlu
Electrical Project: Birkan Yüksek
Project Start Date: 2013
Project End Date: 2013
Total Construction Area: 174,871 m2