7/11
Paylaş
Resmi Orjinal Boyutunda Göster
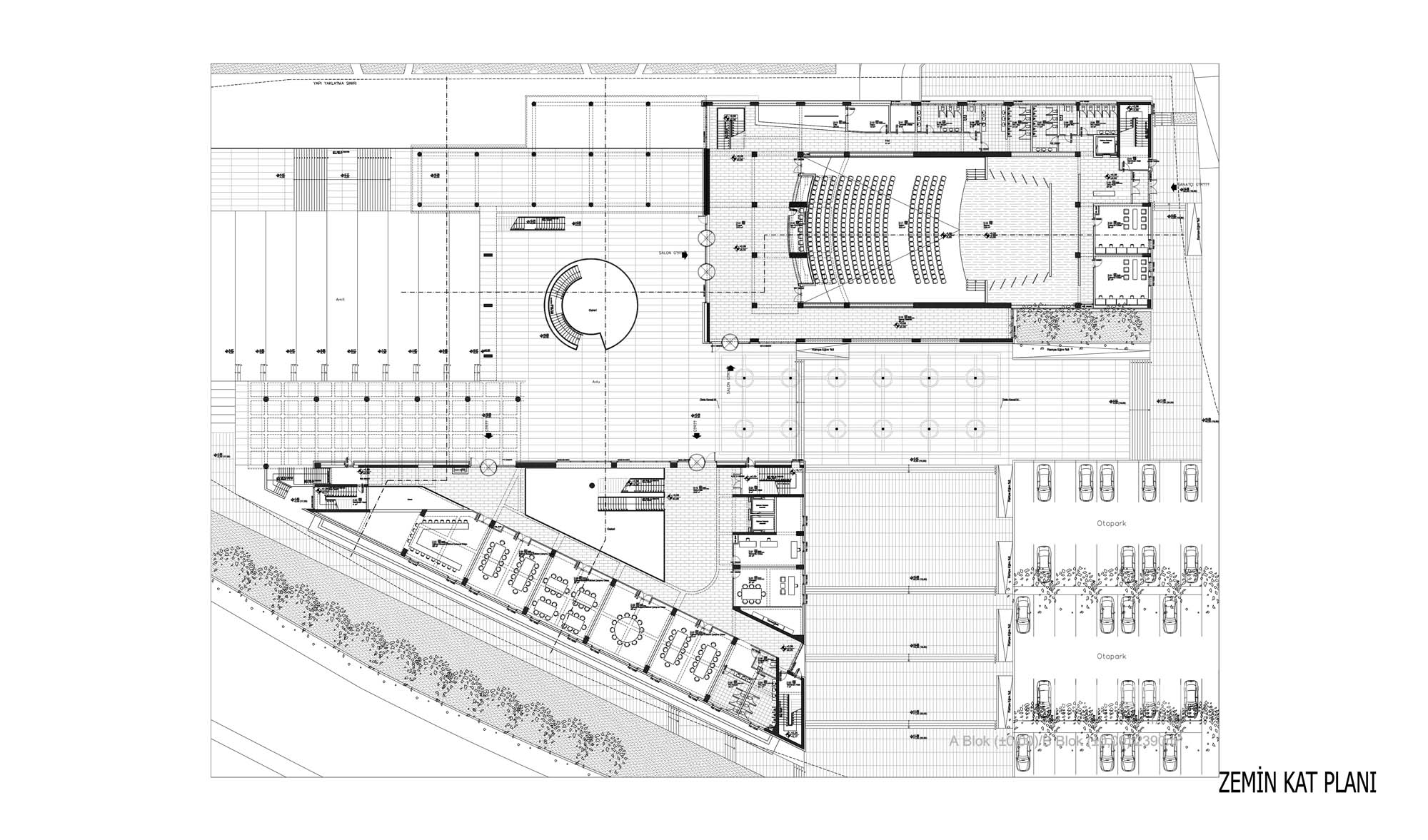
Küçükçekmece Gençlik Merkezi
Proje Yeri: Küçükçekmece, İstanbul
Proje Ofisi: TH ve İdil Mimarlık
Proje Tipi: Sosyal Tesis
Proje Tipi Grubu: Kültür
Tasarım Ekibi: Hasan Özbay, Tamer Başbuğ, Baran İdil, Aslı Özbay
İşveren: Küçükçekmece Belediyesi
Peyzaj Mimarlığı: Serpil Öztekin
Statik Projesi: M. Atilla Eser
Mekanik Projesi: Ünal Karakoyunlu
Elektrik Projesi: Ali Gündüz
Proje Başlangıç Yılı: 2011
Proje Bitiş Yılı: 2012
Toplam İnşaat Alanı: 11,000 m2