14/16
Paylaş
Resmi Orjinal Boyutunda Göster
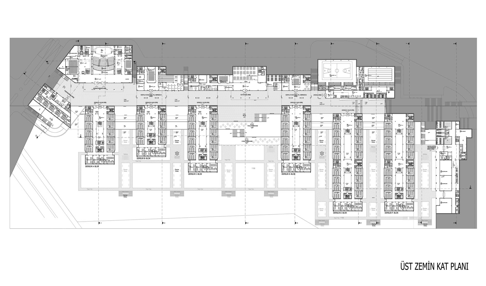
Katılımcı, Eğitim Kampüsleri Mimari Proje Yarışması, Ovacık
Proje Yeri: Ovacık
Proje Ofisi: TH ve İdil Mimarlık
Proje Tipi: Lise / Ortaöğretim
Proje Tipi Grubu: Eğitim
Tasarım Ekibi: Hasan Özbay, Tamer Başbuğ, Baran İdil, Aslı Özbay
İşveren: Milli Eğitim Bakanlığı (MEB)
Peyzaj Mimarlığı: Serpil Öztekin
Statik Projesi: Gökhan Beşbaş
Mekanik Projesi: Ünal Karakoyunlu
Elektrik Projesi: Birkan Yüksek
Proje Başlangıç Yılı: 2011
Proje Bitiş Yılı: 2011
Toplam İnşaat Alanı: 159,636 m2