9/12
Paylaş
Resmi Orjinal Boyutunda Göster
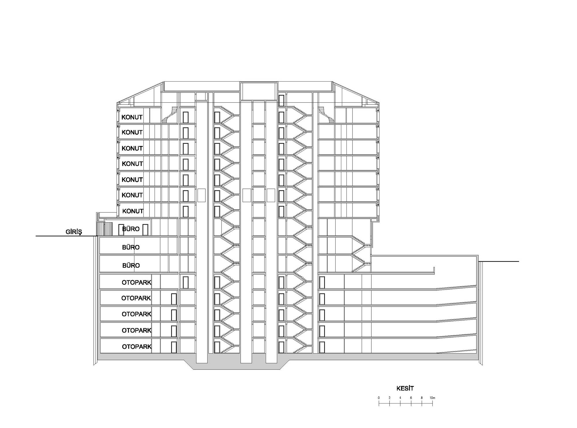
SOHO Residence
Proje Yeri: Zincirlikuyu, İstanbul
Proje Ofisi: Mutlu Çilingiroğlu MİAR Mimarlık Bürosu
Proje Tipi: Apartman, Ofis
Proje Tipi Grubu: Konut
Tasarım Ekibi: Mutlu Çilingiroğlu
İşveren: Soyak
Yardımcı: Göksel Kılınç, Tülin Ulaş
Ana Yüklenici: Soyak
İç Mekan Projesi: TO Stüdyo, Tanju Özelgin
Statik Projesi: Modern Mühendislik
Mekanik Projesi: AMK Mühendislik
Elektrik Projesi: HB Teknik Elektrik Mühendislik
Fotoğraf: Cemal Emden
Proje Başlangıç Yılı: 2011
Proje Bitiş Yılı: 2013
İnşaat Başlangıç Yılı: 2011
İnşaat Bitiş Yılı: 2014
Arsa Alanı: 3500 m²
Toplam İnşaat Alanı: 26,000 m²