7/13
Paylaş
Resmi Orjinal Boyutunda Göster
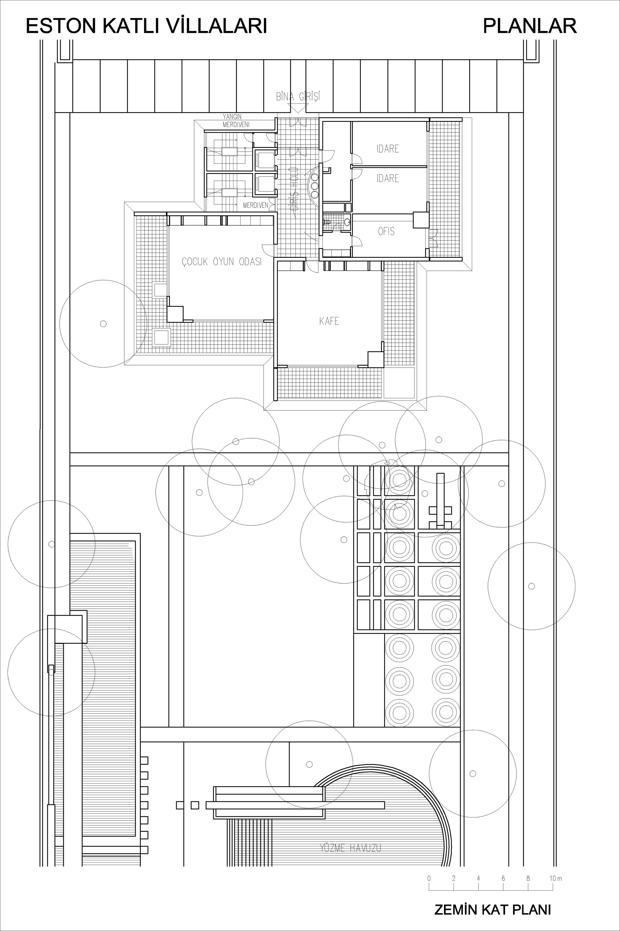
Beyazıt-Eston Katlı Villaları
Proje Yeri: Kadıköy, İstanbul
Proje Ofisi: Mutlu Çilingiroğlu MİAR Mimarlık Bürosu
Proje Tipi: Apartman
Tasarım Ekibi: Mutlu Çilingiroğlu, Adnan Kazmaoğlu
İşveren: Eston Yapı
Yardımcı: Kudret Demircioğlu, Devran Bengü
Ana Yüklenici: Eston Yapı
Statik Projesi: İsmet Babuş
Fotoğraf: Cemal Emden
Proje Başlangıç Yılı: 1996
Proje Bitiş Yılı: 1996
İnşaat Başlangıç Yılı: 1997
İnşaat Bitiş Yılı: 1998
Toplam İnşaat Alanı: 4500 m2