3/11
Paylaş
Resmi Orjinal Boyutunda Göster
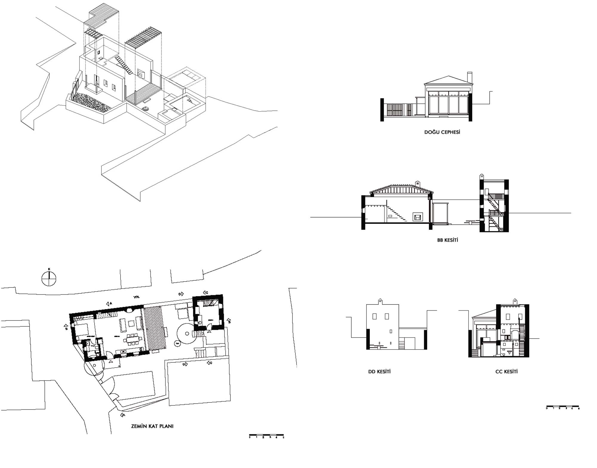
KB Evi
Project Location: Bodrum, Muğla
Project Office: Şans Mimarlık
Project Type: Single House
Proje Tipi Grubu: Konut
Tasarım Ekibi: Ahmet İğdirligil
Project Start Date: 2000
Project End Date: 2001
Construction Start Date: 2001
Construction End Date: 2003
Building Plot Area: 252 m2
Total Construction Area: 160 m2