9/22
Paylaş
Resmi Orjinal Boyutunda Göster
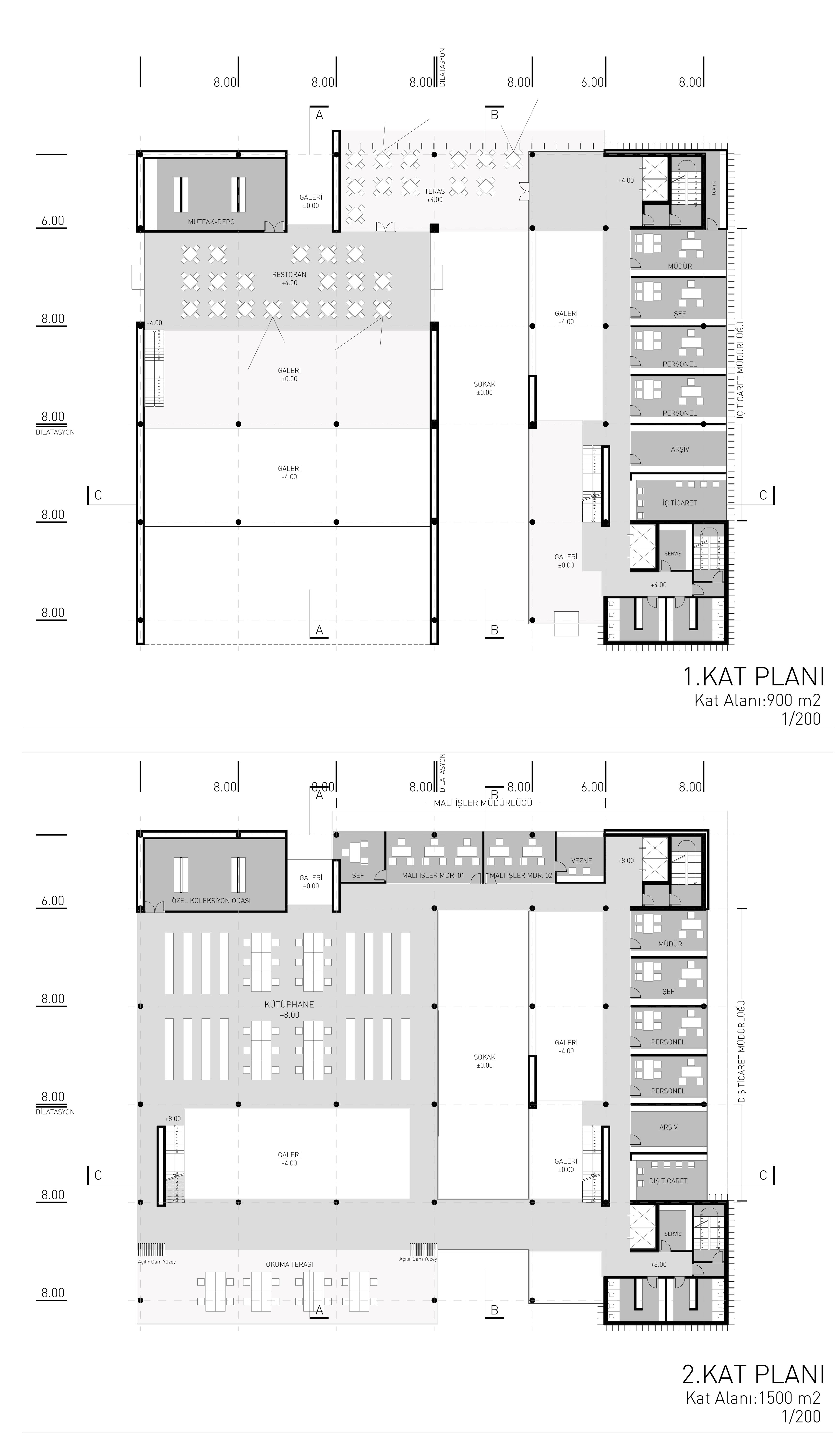
3.Ödül, Adana Ticaret Odası Hizmet Binası Mimari Proje Yarışması
Project Location: Adana
Project Office: OfficePAN Mimarlık, NODE Architects
Project Type: Offices
Proje Tipi Grubu: 3. Ödül
Tasarım Ekibi: Cihan Sevindik, Doğan Türkkan, Sinan Tuncer, Birsel Saygılı
Project Start Date: 2014
Project End Date: 2014