05 1
6/14
Paylaş
Resmi Orjinal Boyutunda Göster
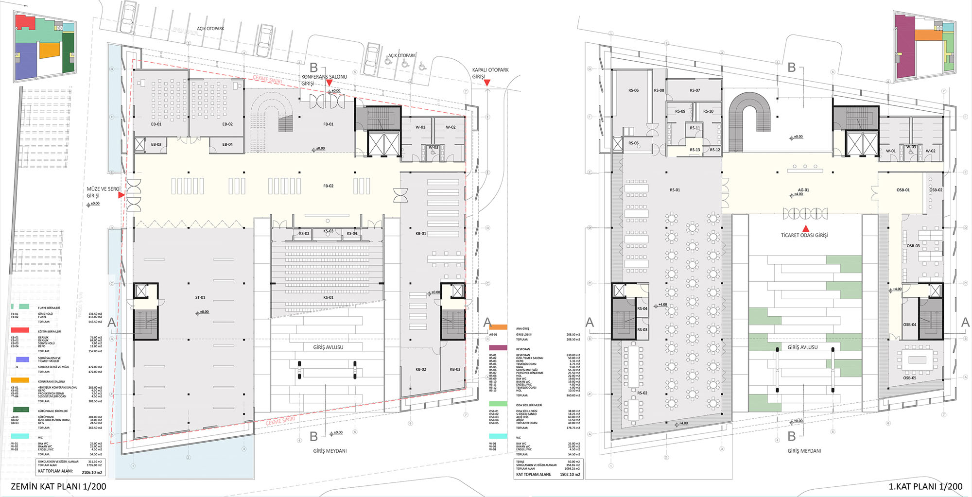
1. Satın Alma, Adana Ticaret Odası Hizmet Binası Ulusal Mimari Proje Yarışması
Proje Müellifi: Rahmi UYSALKAN, Hanifi SEKMEN
Proje Ofisi: Uysalkan Mimarlık
Tasarım Ekibi: Rahmi Uysalkan, Hanifi Sekmen
Danışman: Tuncay Gün, Süleyman Akım, Engin Ulucak
Yardımcı: Hüseyin Ahmet, Seçil Kona, Anna Cojocar, Vladimir Calmic, Haki Coşkun
Proje Başlangıç Yılı: 2014
Proje Bitiş Yılı: 2014