44/46
Paylaş
Resmi Orjinal Boyutunda Göster
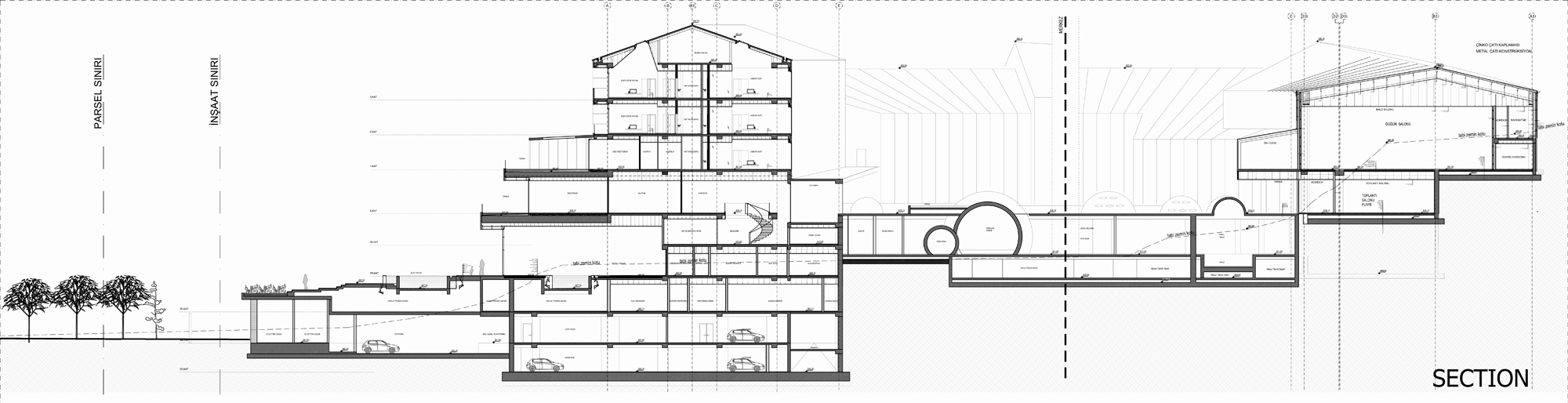
Eskişehir Rixos Spa Termal Otel
Project Location: Odunpazarı, Eskişehir
Project Office: Global Architectural Development (GAD)
Project Type: Hotel / Motel
Proje Tipi Grubu: Konaklama
Tasarım Ekibi: Gökhan Avcıoğlu
Architectural Project Team: Nesime Önel, Ertuğrul Morçöl, Gizem Kıroğlu, Ömer Karaer, Durak Arıkan, Ayşegül Altuğ, Derya Arpaç, Mehmet Baykara, Aslı Genç, Müge Tan, Scott Baltimore, Elif Şahinoğlu
Employer: Polimeks İnşaat
Photography: Alp Eren
Construction End Date: 2014
Building Plot Area: 2.500 m2
Total Construction Area: 45.000 m²