7/9
Paylaş
Resmi Orjinal Boyutunda Göster
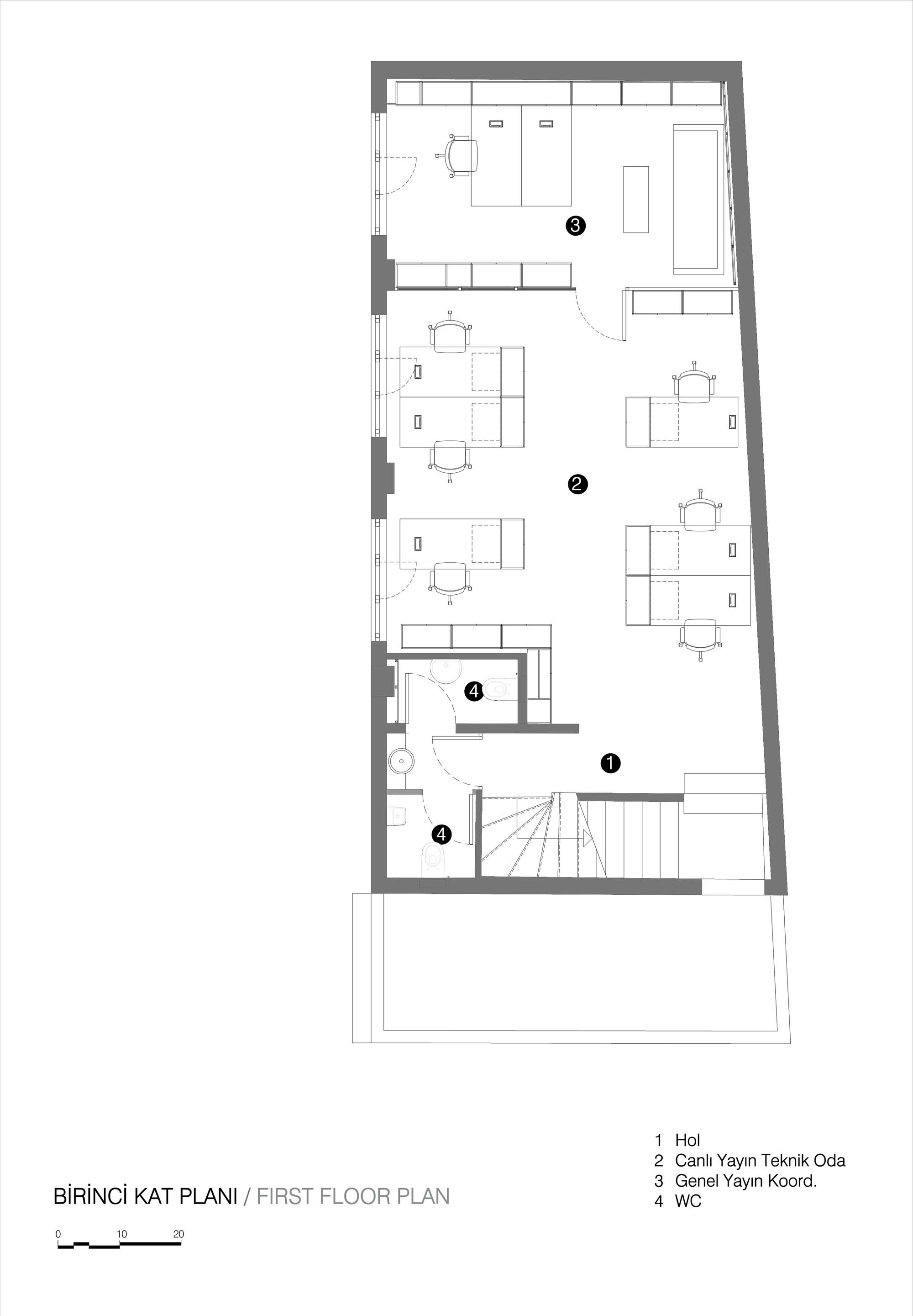
Açık Radyo
Proje Yeri: Beyoğlu, İstanbul
Proje Ofisi: CM Mimarlık
Proje Tipi: Ofis, Televizyon - Radyo Yapısı
Tasarım Ekibi: Cem Sorguç
İşveren: Açık Radyo
Danışman: Mehmet Çalışkan, Korhan Şişman, Teknoel Mühendislik
Yardımcı: Özlem Yılmaz, Tolga Yağlı, Deniz Gezgin
Ana Yüklenici: Açık Radyo
İç Mekan Projesi: CM Mimarlık
Proje Yöneticisi: Özlem Yılmaz
Akustik Danışmanı: Atalay Şengül
Fotoğraf: CM Mimarlık
Proje Başlangıç Yılı: 2013
Proje Bitiş Yılı: 2013
İnşaat Başlangıç Yılı: 2013
İnşaat Bitiş Yılı: 2013
Toplam İnşaat Alanı: 256 m2