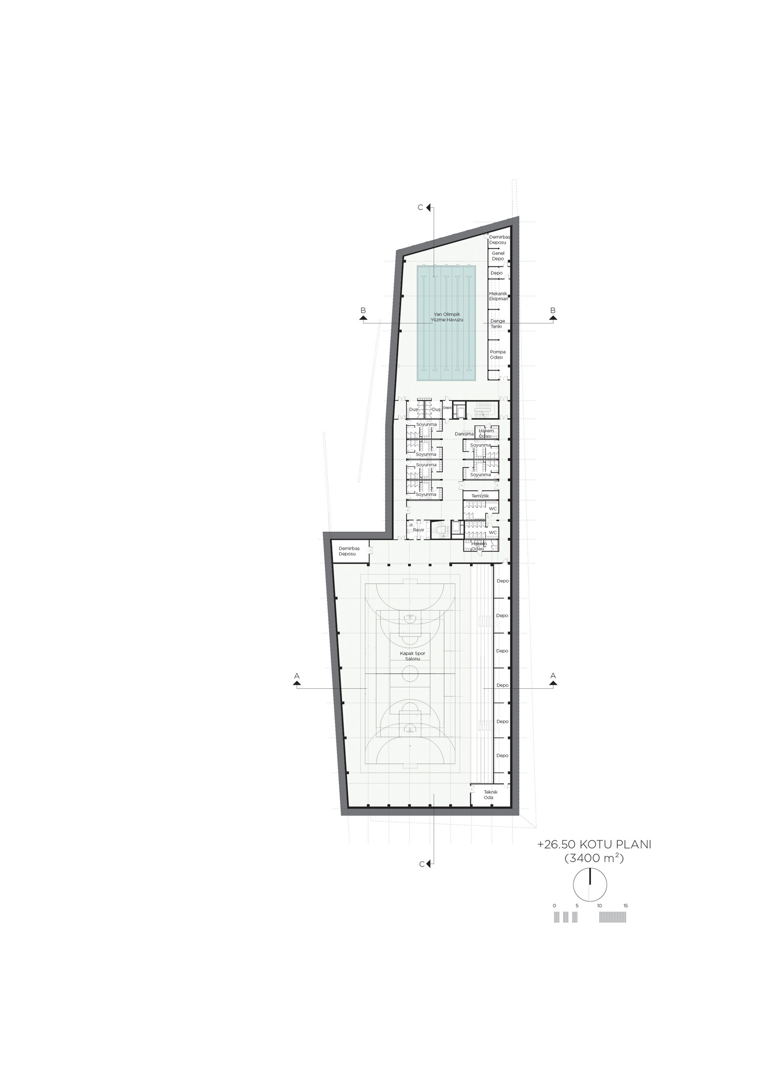
plan001 spor salonu 400 scale-01-01-01
21/29
Paylaş
Resmi Orjinal Boyutunda Göster
Eşdeğer Mansiyon
Project Location: Gökçeada, Çanakkale
Project Type: High School
Proje Tipi Grubu: Eşdeğer Mansiyon
Tasarım Ekibi: Alper Ünlü, Deniz Aslan, Ozan Önder Özener, Mehmet Emin Şalgamcıoğlu
Yardımcı: Gözde Temiz, Turan Altıntaş, Fulya Menderes, Özge Ünlü Demirkuşak