3/6
Paylaş
Resmi Orjinal Boyutunda Göster
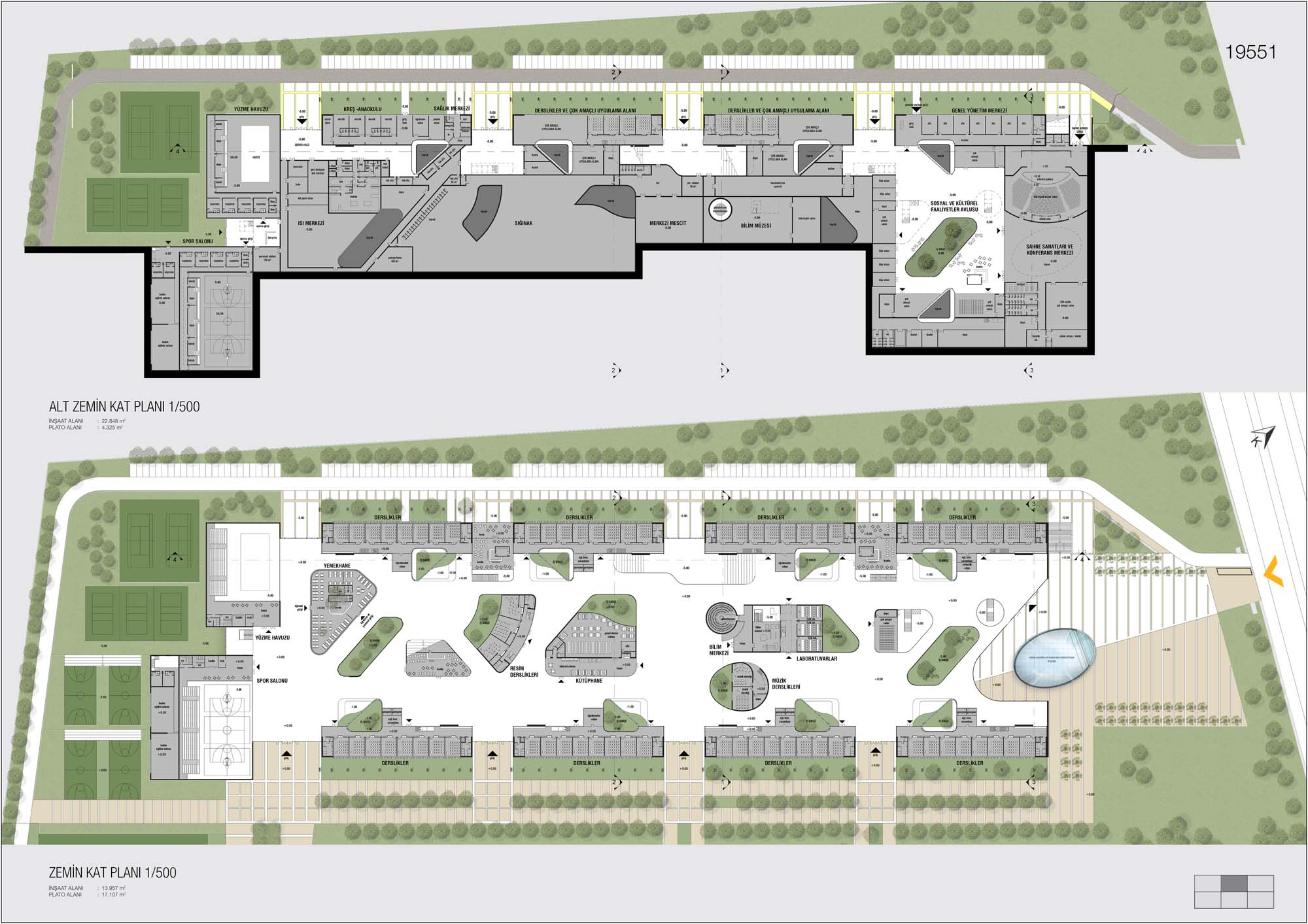
MEB 3. Grup Erzurum Yakutiye Eğitim Kampüsü Mimari Proje Yarışması
Proje Yeri: Erzurum, Yakutiye
Proje Ofisi: VEN Mimarlık
Proje Tipi: Lise / Ortaöğretim
Tasarım Ekibi: Gül Güven, Fatih Erduman, Ceren Demircan, Recep Aygın, Nihat Beyoğlu, İrem Erkan, Gülistan Durmaz, Zeynep Aygın, Gamze Güven, Figen Zorlu
İşveren: Milli Eğitim Bakanlığı (MEB)
Danışman: Selami Demiralp, Özgür Özdemircan, Garaj Tasarım
Proje Başlangıç Yılı: 2013
Proje Bitiş Yılı: 2013
Arsa Alanı: 163,313 m²
Toplam İnşaat Alanı: 64,065 m²