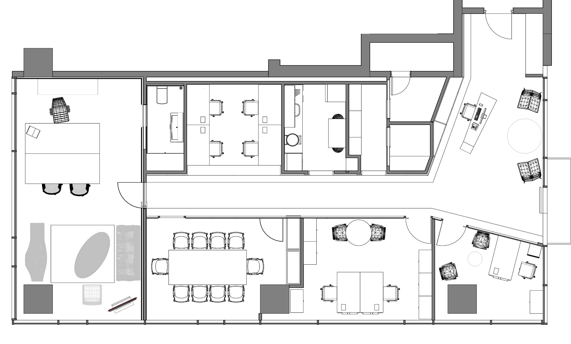
Kat Planı
8/8
Paylaş
Resmi Orjinal Boyutunda Göster
Cpa Ofis
Project Location: Ankara, Çayyolu
Project Office: VEN Mimarlık
Project Type: Offices
Tasarım Ekibi: Gül Güven, Zeynep Aydın, Gamze Güven, Figen Zorlu
Employer: Can Polat Aras
Consultant: Garaj Tasarım
Mechanical Project: Ak Proje
Electrical Project: Saka Mühendislik
Photography: Özgür Özdemircan
Project Start Date: 2013
Project End Date: 2013
Construction Start Date: 2014
Construction End Date: 2014
Total Construction Area: 160 m2