14/23
Paylaş
Resmi Orjinal Boyutunda Göster
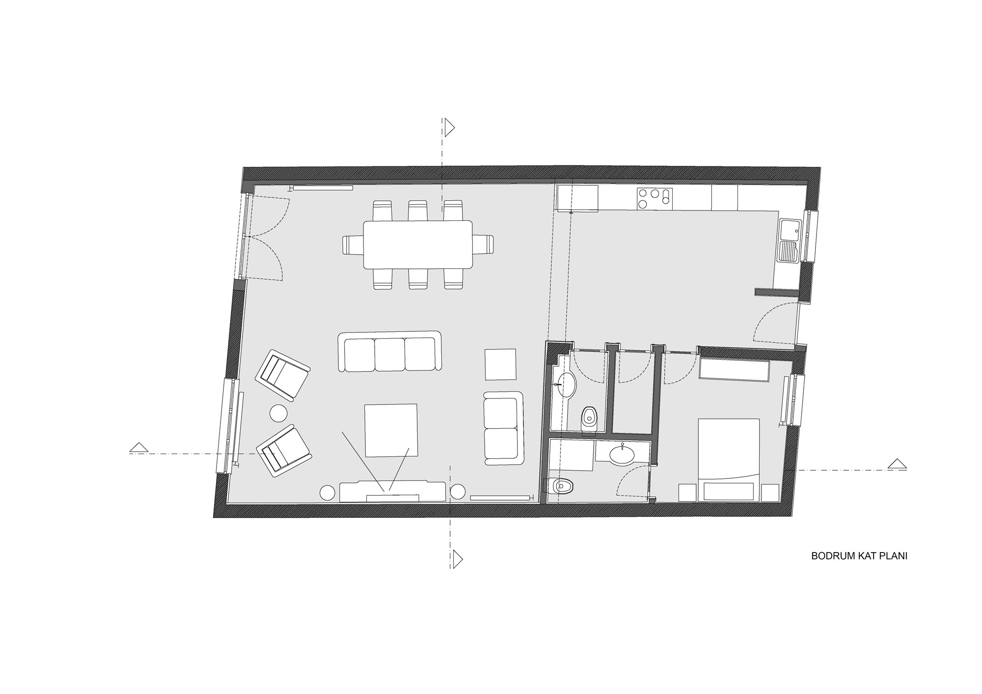
Niyazi Kaptan Yalısı
Proje Yeri: Beykoz, İstanbul
Proje Ofisi: M-Ofis Mimarlık
Proje Tipi: Tek Ev / Villa
Proje Tipi Grubu: Konut
Tasarım Ekibi: Serkan İğdelipınar, A. Sinan Timoçin
İşveren: Hüsamettin Özkan
Yardımcı: Fırat Çoban, Burcu Ersan
Statik Projesi: M-Ofis Mimarlık
Fotoğraf: Fırat Çoban
Proje Başlangıç Yılı: 2011
Arsa Alanı: 1.000 m²
Toplam İnşaat Alanı: 400 m2