8/11
Paylaş
Resmi Orjinal Boyutunda Göster
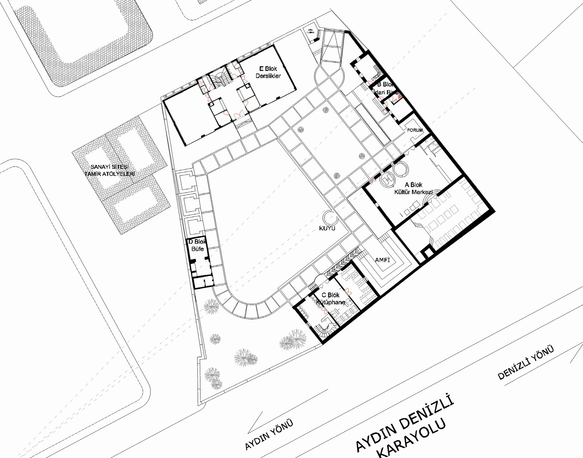
Adnan Menderes Üniversitesi A.H. Balcıoğlu Kampüsü
Proje Yeri: Aydın
Proje Ofisi: Kaynak Mimarlık
Proje Tipi: Üniversite Kampüsü
Proje Tipi Grubu: Eğitim
Tasarım Ekibi: İsmail Emre Kaynak
İşveren: Urna Lectus LTD
Proje Başlangıç Yılı: 2008
Proje Bitiş Yılı: 2009
İnşaat Başlangıç Yılı: 2009
İnşaat Bitiş Yılı: 2010
Arsa Alanı: 3675 m2
Toplam İnşaat Alanı: 1600 m²