1/6
Paylaş
Resmi Orjinal Boyutunda Göster
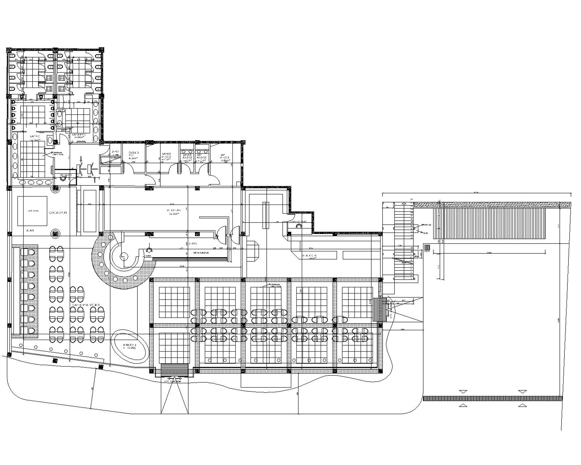
Anadolu Seyahat Mola
Project Location: Uşak
Project Office: Gökmen Mimarlık, Eko Adm
Project Type: Restaurant / Café / Bar, Hotel / Motel
Proje Tipi Grubu: Konaklama
Tasarım Ekibi: Tamer Aksüt, Erdinç Gökmen
Employer: Anadolu Seyahat
Project Start Date: 2009
Project End Date: 2009