12/14
Paylaş
Resmi Orjinal Boyutunda Göster
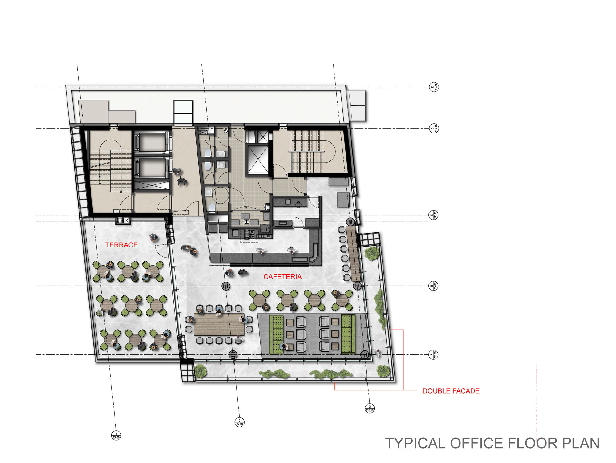
Garanti Bankası Hizmet Binası
Proje Yeri: Ankara
Proje Ofisi: Özer + Tulgan Mimarlık
Proje Tipi: Ofis
Tasarım Ekibi: Tayfun Tulgan, Emre Özer
İşveren: Garanti Bankası
Danışman: Salih Sekban
Yardımcı: Sevda Deniz, Ezgi Keskin, Hande Bükülmez, Çağdaş Özcanlı, A. Çetin Çetkin
Statik Projesi: Arçe Mühendislik
Mekanik Projesi: Elmak Mühendislik
Elektrik Projesi: Sanayi Müh.Tic.Ltd.Şti.
Proje Başlangıç Yılı: 2008
Proje Bitiş Yılı: 2009
Arsa Alanı: 620 m²
Toplam İnşaat Alanı: 4.500 m2