22/23
Paylaş
Resmi Orjinal Boyutunda Göster
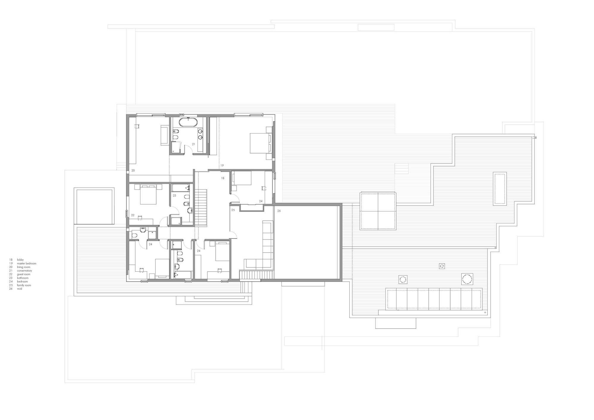
Villa Nirala
Proje Yeri: Londra
Proje Ofisi: AVCI Architects
Proje Tipi: Tek Ev / Villa
Proje Tipi Grubu: Konut
Tasarım Ekibi: Selçuk Avcı, Sanja Jurca Avcı, Colin Mccoll
İşveren: Aref Karim
Ana Yüklenici: AVCI Architects
Proje Başlangıç Yılı: 2002
Proje Bitiş Yılı: 2002
İnşaat Başlangıç Yılı: 2002
İnşaat Bitiş Yılı: 2004
Arsa Alanı: 5,000 m²
Toplam İnşaat Alanı: 1,000 m²