8/10
Paylaş
Resmi Orjinal Boyutunda Göster
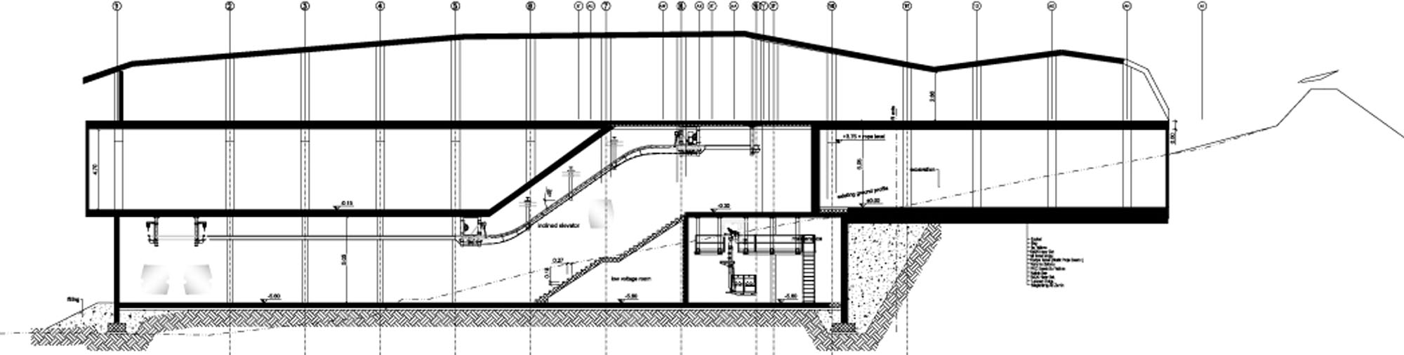
Uludağ Oteller Bölgesinde Teleferik Ticaret ve Kayak Okulu
Project Location: Bursa
Project Office: Korfalı Mimarlık
Project Type: Other Education Buildings
Tasarım Ekibi: Yamaç Korfalı
Employer: Bursa Teleferik AŞ
Structural Project: Kemal Keser
Project Start Date: 2014
Project End Date: 2014
Building Plot Area: 10.000 m²