3/8
Paylaş
Resmi Orjinal Boyutunda Göster
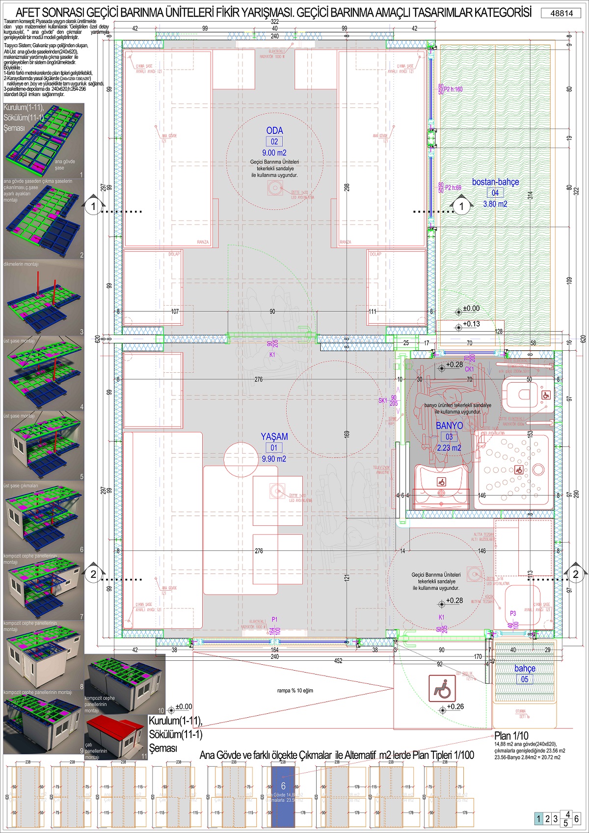
AFAD
Project Type: Shelter / Temporary Accomodation
Proje Tipi Grubu: 2. Mansiyon
Tasarım Ekibi: Levent Timurhan
Structural Project: Atilla Tarman