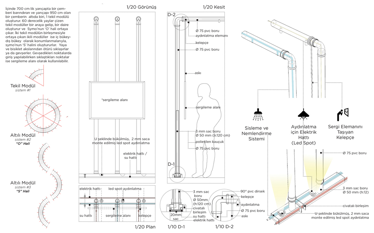
4 detaylar ve sistem kesiti
4/10
Paylaş
Resmi Orjinal Boyutunda Göster
Katılımcı, Tasarim Koridorlari Ulusal Fikir Yarismasi, Nail Yerce
Proje Yeri: İzmir
Proje Ofisi: Yerce + Taylan Architects
Tasarım Ekibi: Nail Egemen Yerce, Ayça Taylan, Selin Erdemirci