44/46
Paylaş
Resmi Orjinal Boyutunda Göster
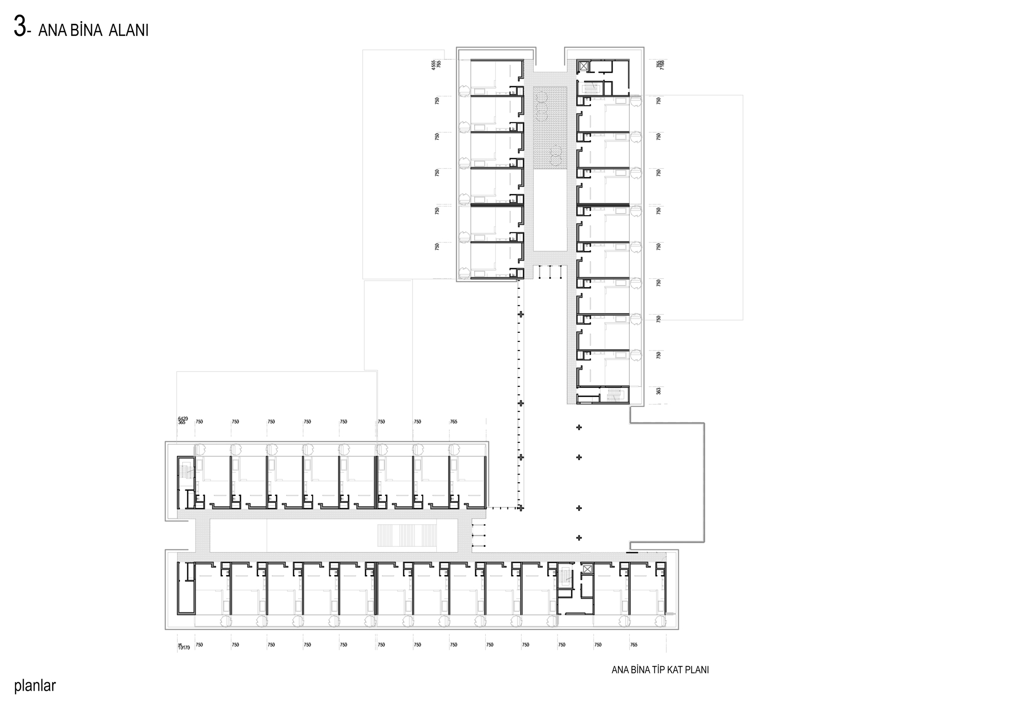
Maxx Royal Kemer Resort&Spa
Proje Yeri: Kemer, Antalya
Proje Ofisi: Baraka Mimarlık
Proje Tipi: Otel / Motel
Proje Tipi Grubu: Konaklama
Tasarım Ekibi: Abdurrahman Çekim, Sevilay Uğur Çekim, Çağla Makara, Ceren Abacı
Mimari Proje Ekibi: Damla Uçar, Tuğçe Torunlar, Gamze Çelikdiş, Burak Koç, Akın Çakıroğlu, Uğur Bilir
İşveren: Ersoy Otelcilik İnşaat Turizm İşletmeciliği
Danışman: Mahmut Anlar
İç Mekan Projesi: GeoID, Mahmut Anlar
Proje Yöneticisi: Fırat İşcan
Aydınlatma Projesi: Nergiz Arifoğlu Lightstyle - Mimari Aydınlatma Tasarımı ve Danışmanlığı
Statik Projesi: Yapı Akademisi
Mekanik Projesi: Elmaksan Mühendislik
Elektrik Projesi: HB Elektrik
İnşaat Bitiş Yılı: 2014
Arsa Alanı: 150.000 m2
Toplam İnşaat Alanı: 100.000 m²