9/10
Paylaş
Resmi Orjinal Boyutunda Göster
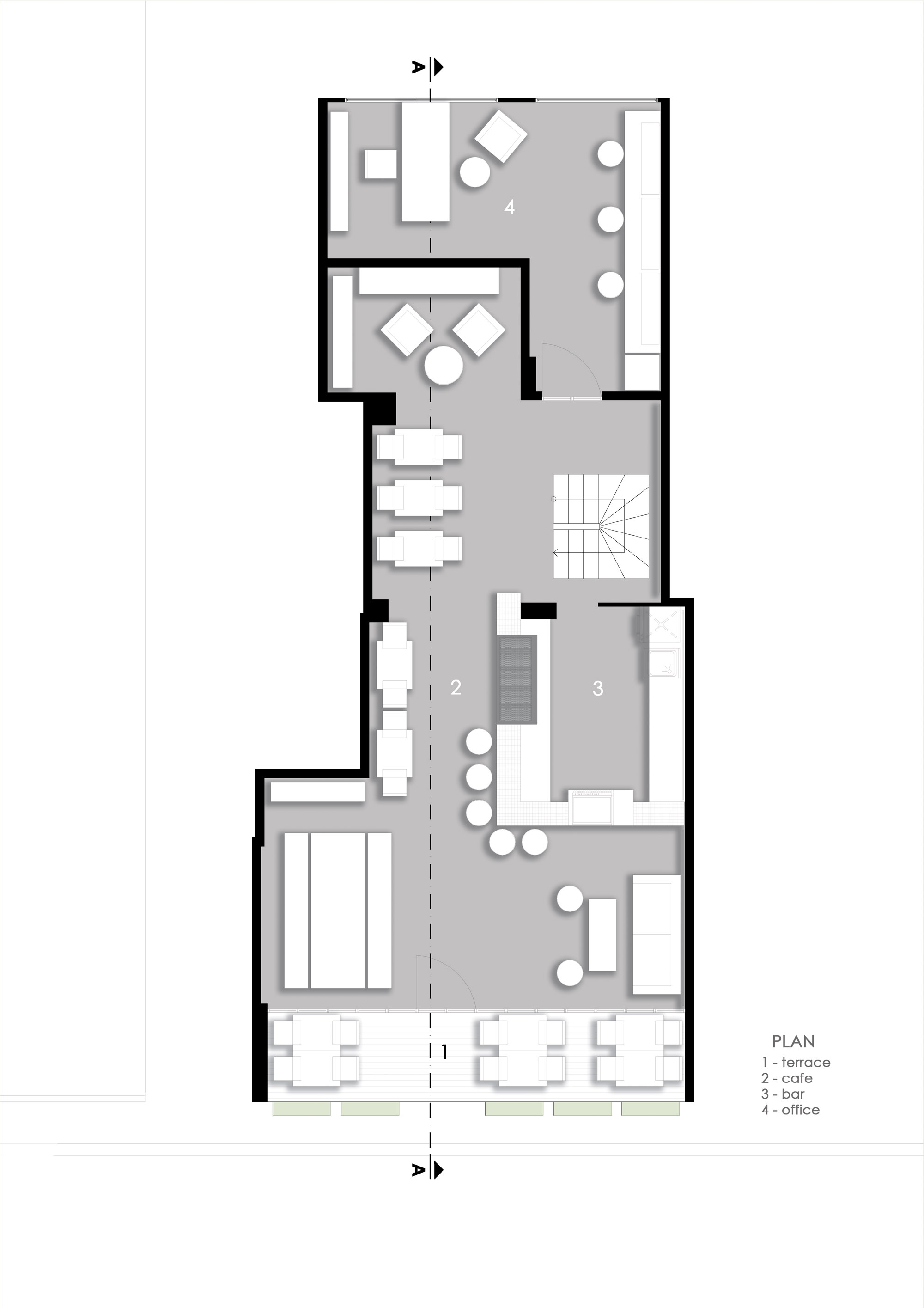
Setup Kafe
Proje Yeri: Kabataş, İstanbul
Proje Ofisi: BG Architects
Proje Tipi: Restoran / Kafe / Bar
Tasarım Ekibi: Barış Başat
Peyzaj Mimarlığı: Tennis Akademi, Ümit Yılmaz
Fotoğraf: Can Dağarslanı
Proje Başlangıç Yılı: 2012
Proje Bitiş Yılı: 2013
İnşaat Başlangıç Yılı: 2013
İnşaat Bitiş Yılı: 2014
Toplam İnşaat Alanı: 170 m²