10/10
Paylaş
Resmi Orjinal Boyutunda Göster
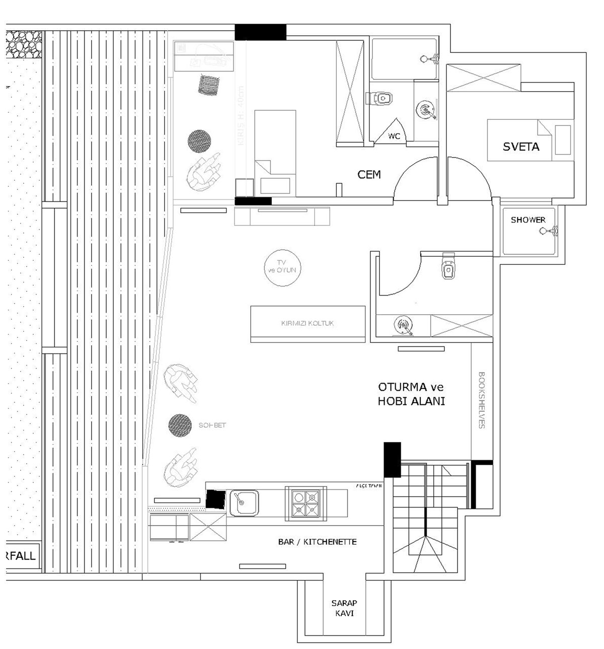
HM280 Evi
Project Location: Beşiktaş, İstanbul
Project Office: Punto Mimarlık
Project Type: Single House
Proje Tipi Grubu: Konut
Tasarım Ekibi: Esin Dorsan
Employer: Hande Eskinazi
Yardımcı: Nihan Bulak
Ana Yüklenici: Punto Mimarlık
Peyzaj Mimarlığı: Albanian Ltd.
Interior Architecture: Punto Mimarlık
Projcet Manager: Esin Dorsan
Lighting Project: Punto Mimarlık
Mechanical Project: Selimak
Electrical Project: Punto Mimarlık
Photography: Engin Pulat, Photobush
Project Start Date: 2012
Project End Date: 2012
Construction Start Date: 2012
Construction End Date: 2013
Building Plot Area: 1,240 m²
Total Construction Area: 430 m²