10/12
Paylaş
Resmi Orjinal Boyutunda Göster
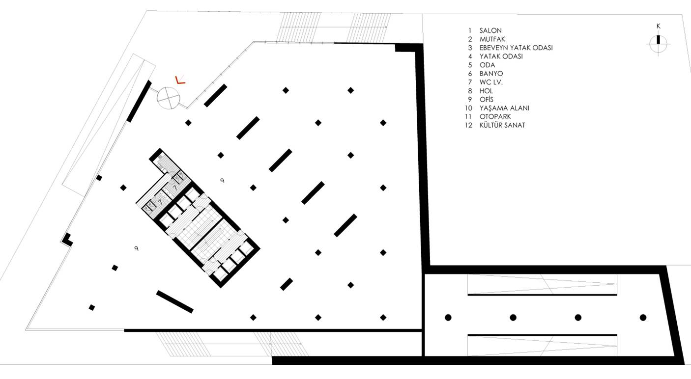
Levent Kule
Project Location: İstanbul, Beşiktaş
Project Office: Sepin Mimarlık
Project Type: Housing Complex, Offices
Proje Tipi Grubu: Konut
Tasarım Ekibi: Yavuz Selim Sepin
Employer: Seba İnşaat
Yardımcı: Gökçen Demirkır, Aygül Ceylan, Emre Apak, Kamil Gürbüz, Serap Çoban, Seda Köseer, Özcan Kaya
Project Start Date: 2009
Project End Date: 2009
Building Plot Area: 4,750 m²
Total Construction Area: 65,000 m²