8/16
Paylaş
Resmi Orjinal Boyutunda Göster
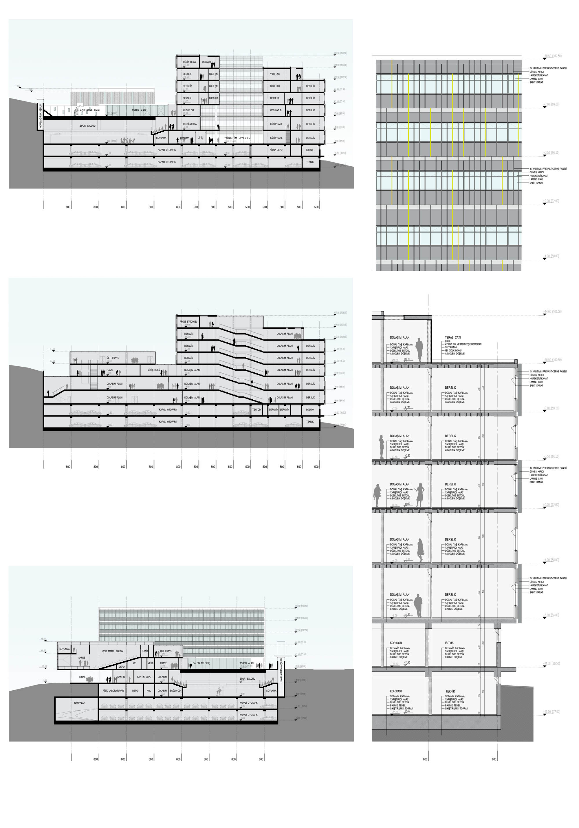
Katılımcı, Şişli Lisesi Ulusal Mimari Proje Yarışması
Project Location: Şişli, İstanbul
Project Office: SN Mimarlık
Project Type: High School
Proje Tipi Grubu: Katılımcı
Tasarım Ekibi: Süleyman Akkaş, Nihal Şenkaya Akkaş
Employer: Şişli Belediyesi
Yardımcı: Enes Yücepur
Project Start Date: 2011
Total Construction Area: 18,777 m2