12/13
Paylaş
Resmi Orjinal Boyutunda Göster
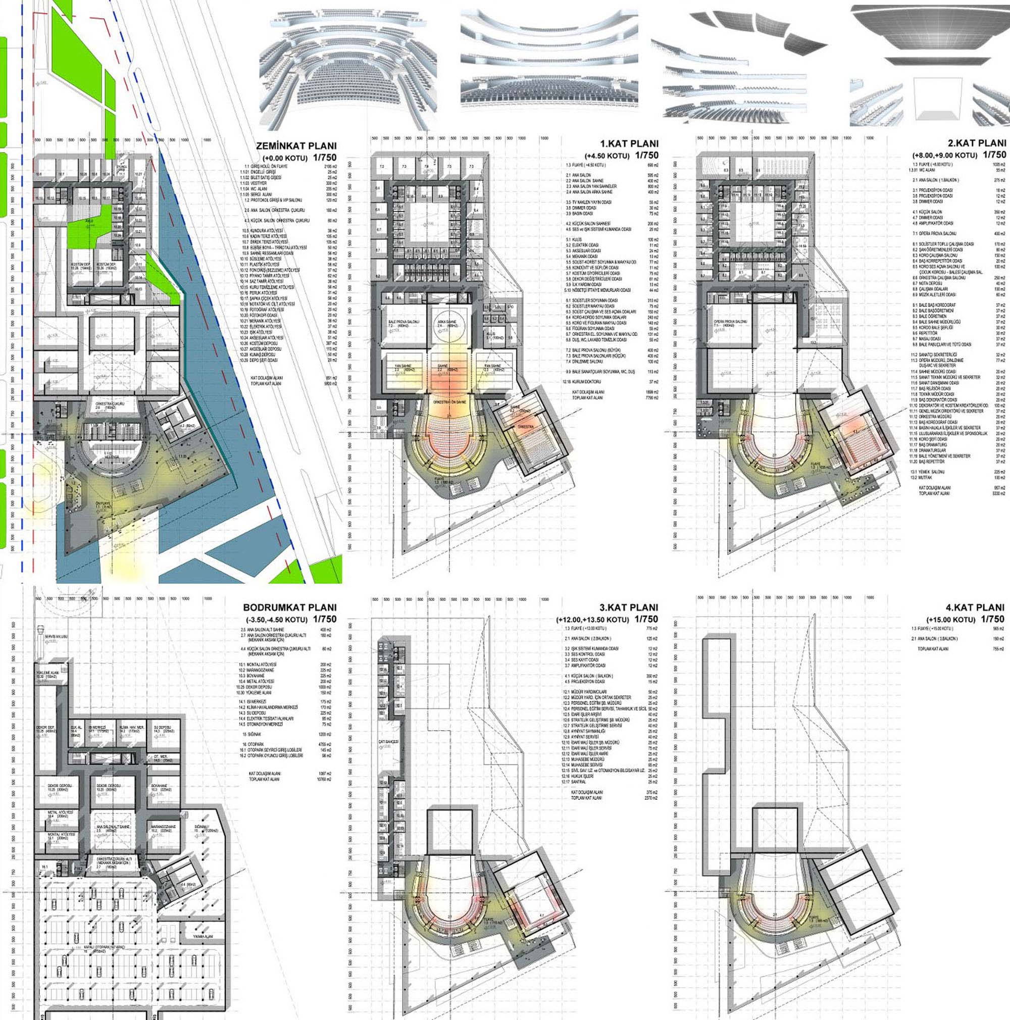
Katılımcı, İzmir Büyükşehir Belediyesi Opera Binası Mimari Proje Yarışması
Proje Yeri: İzmir
Proje Ofisi: SN Mimarlık
Proje Tipi: Opera / Bale Salonu
Proje Tipi Grubu: Katılımcı
Tasarım Ekibi: Süleyman Akkaş, Nihal Şenkaya Akkaş
İşveren: İzmir Büyükşehir Belediyesi
Proje Başlangıç Yılı: 2010
Proje Bitiş Yılı: 2010
Toplam İnşaat Alanı: 32.800 m2