4/12
Paylaş
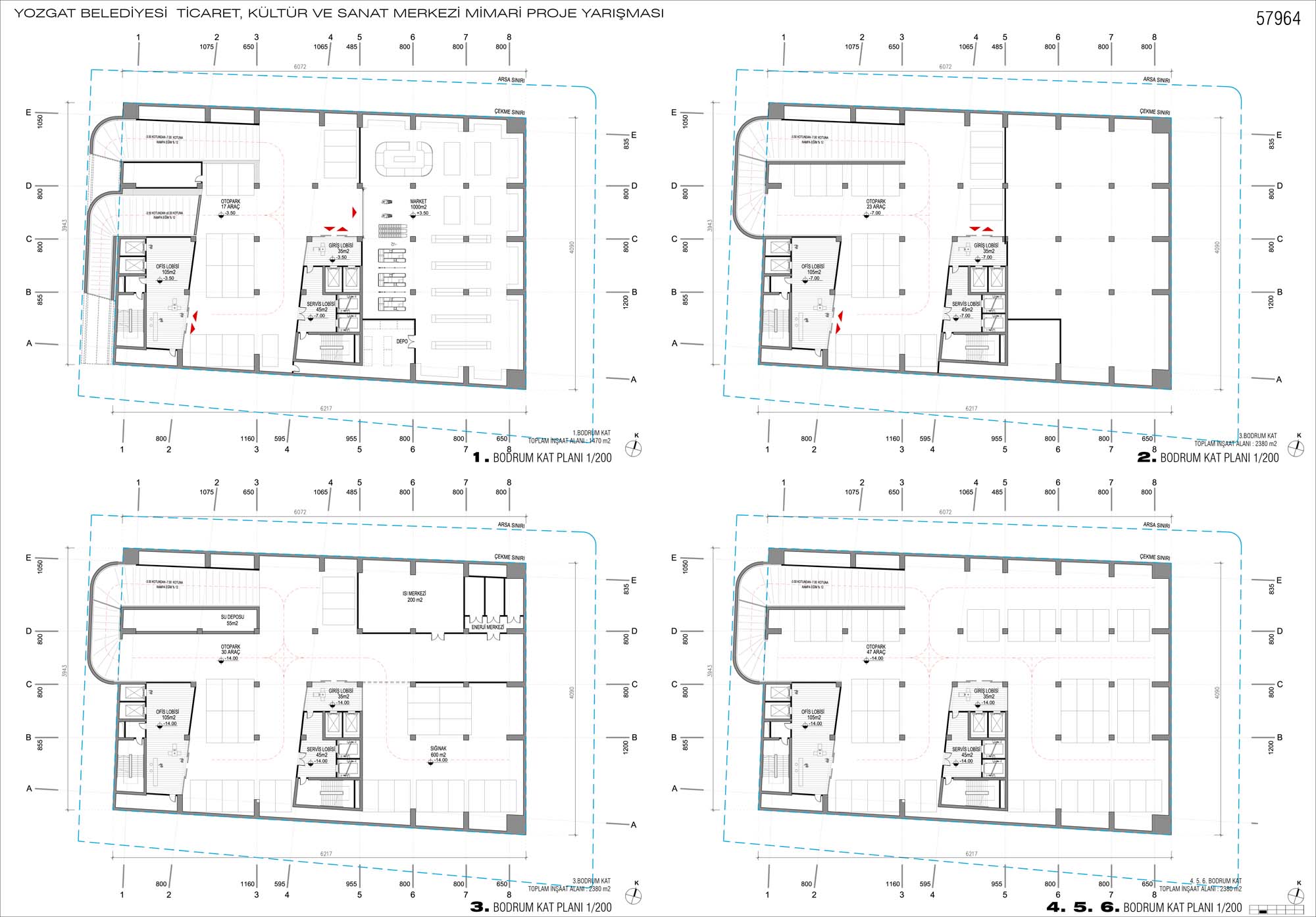
Resmi Orjinal Boyutunda Göster
Katılımcı, Yozgat Belediye Başkanlığı Ticaret, Kültür ve Sanat Merkezi Ulusal Mimari Proje Yarışması
Project Location: Yozgat
Project Office: SN Mimarlık
Project Type: Cultural Center
Proje Tipi Grubu: Katılımcı
Tasarım Ekibi: Süleyman Akkaş, Nihal Şenkaya Akkaş, Ahmet Çorapçıoğlu, Ali Çalışkan
Employer: Yozgat Belediyesi
Project Start Date: 2008
Total Construction Area: 25.976 m2