9/12
Paylaş
Resmi Orjinal Boyutunda Göster
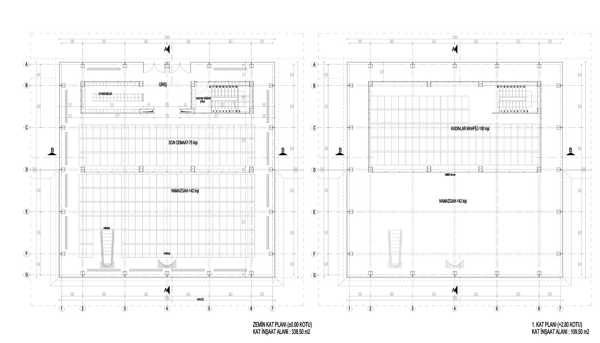
Anadolu Harikalar Diyarı Cami
Project Location: Kayseri
Project Office: İkikerebir
Project Type: Mosque / Prayer Room
Proje Tipi Grubu: Dini
Tasarım Ekibi: Kutlu İnanç Bal, Hakan Evkaya
Employer: Kayseri Büyükşehir Belediyesi
Yardımcı: Mehmet Yılmaz
Structural Project: Yüksel Konkan
Project Start Date: 2012
Project End Date: 2013
Building Plot Area: 15, 000 m2
Total Construction Area: 3000 m2