8/9
Paylaş
Resmi Orjinal Boyutunda Göster
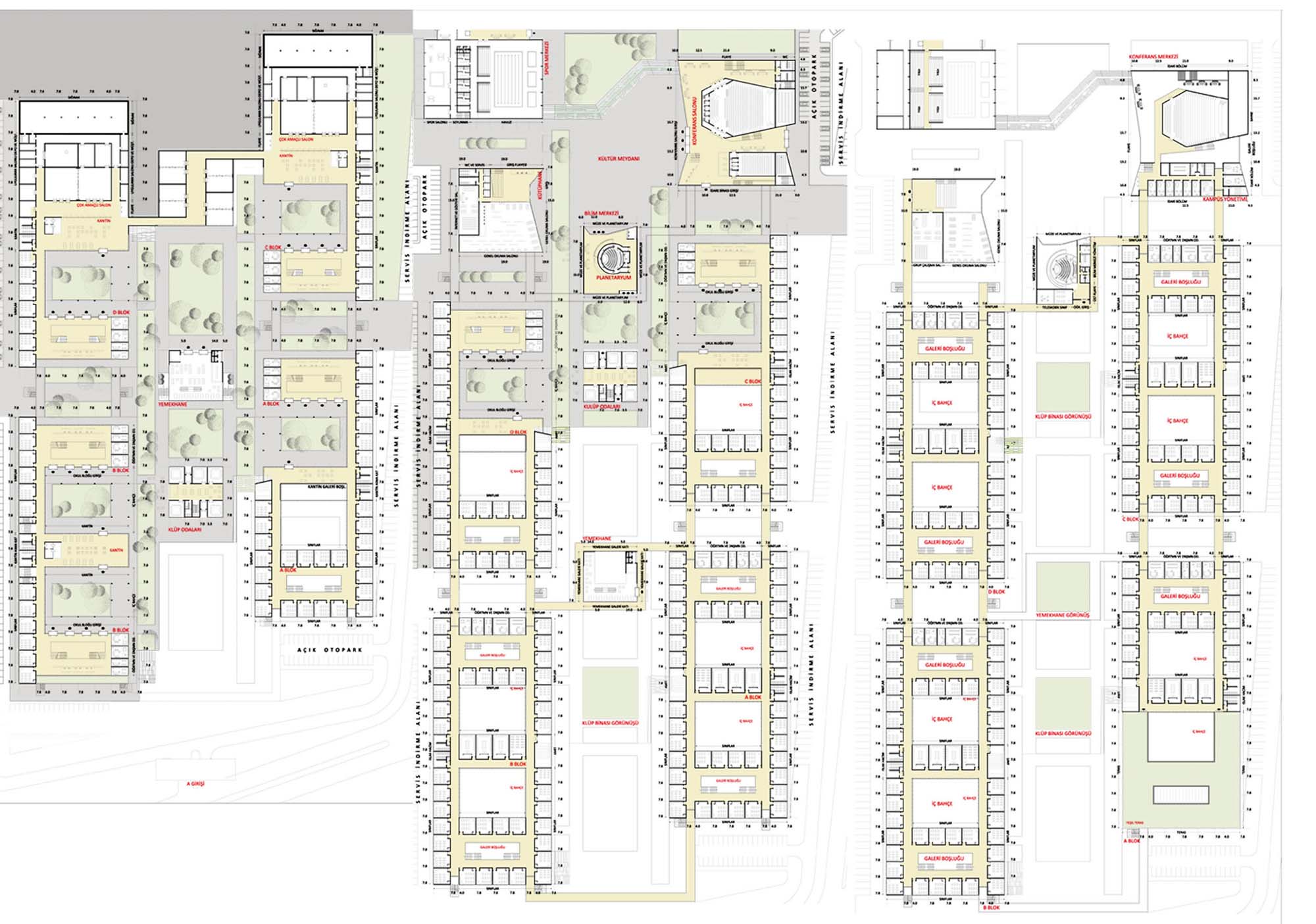
2. Ödül, Balıkesir Bandırma Eğitim Kampüsleri Mimari Proje Yarışması
Project Location: Bandırma, Balıkesir
Project Office: İkikerebir
Project Type: High School
Proje Tipi Grubu: 2. Ödül
Tasarım Ekibi: Hakan Evkaya, Cengiz Gündemir, Kutlu İnanç Bal
Yardımcı: Hikmet Alim, Mehmet Yılmaz
Structural Project: Fatih Mustafa Şahin
Project Start Date: 2013
Building Plot Area: 167.000 m2
Total Construction Area: 105,000 m2