15/20
Paylaş
Resmi Orjinal Boyutunda Göster
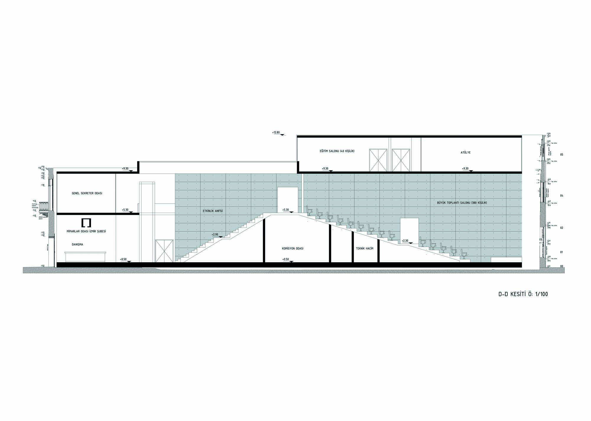
İzmir Mimarlık Merkezi Konsept Projesi ve İç Mekan Projesi
Proje Yeri: Konak, İzmir
Proje Ofisi: İki Artı Bir Mimarlık
Proje Tipi: Kültür Merkezi
Proje Tipi Grubu: Kültür
Tasarım Ekibi: Deniz Dokgöz, Ferhat Hacıalibeyoğlu, Orhan Ersan
İşveren: TMMOB Mimarlar Odası İzmir Şubesi
Yardımcı: Turgut Şakiroğlu
Ana Yüklenici: MTU Mimarlık
Proje Yöneticisi: Hasan Topal
Aydınlatma Projesi: İki Artı Bir Mimarlık
Statik Projesi: Er-Efe Mühendislik
Mekanik Projesi: Meytes Tesisat
Elektrik Projesi: Onmuş Elektrik
Tesisat Projesi: Meytes Tesisat
Akustik Danışmanı: Karkutu Akustik
Fotoğraf: Orhan Ersan, TMMOB Mimarlar Odası İzmir Şubesi
Proje Başlangıç Yılı: 2013
Proje Bitiş Yılı: 2013
İnşaat Başlangıç Yılı: 2013
İnşaat Bitiş Yılı: 2013
Arsa Alanı: 1163 m2
Toplam İnşaat Alanı: 2497 m2