10/22
Paylaş
Resmi Orjinal Boyutunda Göster
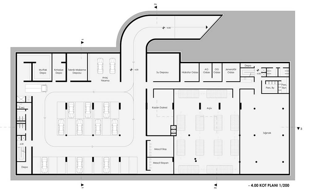
Katılımcı, Kayseri Ticaret Odası Hizmet Binası Ulusal Mimari Fikir Yarışması
Proje Yeri: Kayseri, Kocasinan
Proje Ofisi: İki Artı Bir Mimarlık
Proje Tipi: Ofis
Proje Tipi Grubu: Eşdeğer Ödül
Tasarım Ekibi: Ferhat Hacıalibeyoğlu, Deniz Dokgöz, Orhan Ersan
İşveren: Kayseri Ticaret Odası
Danışman: Cemal Coşak, Kemal Güravşar, Bülent Özgür
Yardımcı: Turgut Şakiroğlu, Gülcan Afacan
Proje Başlangıç Yılı: 2014
Proje Bitiş Yılı: 2014
Arsa Alanı: 3200 m²
Toplam İnşaat Alanı: 7260 m2