6/19
Paylaş
Resmi Orjinal Boyutunda Göster
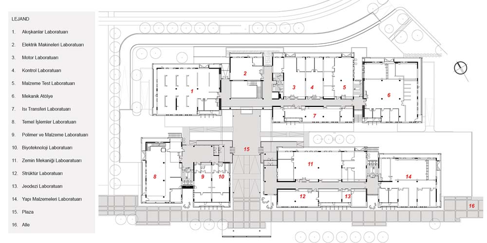
ODTÜ KKK Mühendislik Programları Laboratuarları
Proje Yeri: Kuzey Kıbrıs Türk Cumhuriyeti (KKTC)
Proje Ofisi: FREA, SMAG Mimarlık
Proje Tipi: Yüksek Öğretim Yapısı
Proje Tipi Grubu: Eğitim
Tasarım Ekibi: Fatih Yavuz, Ömer Emre Şavural, Hasan Okan Çetin
İşveren: ODTÜ KKK Yönetim Kurulu Başkanlığı
Yardımcı: Abdullah Çıkrıkçı, Sezgi Gündüz
Ana Yüklenici: Hasan Şakir
Peyzaj Mimarlığı: Habibe Aduş Yılmaz
Statik Projesi: Taylan Karabey, Ercan Akman, Erdal Hüdaoğlu
Mekanik Projesi: Bahri Türkmen, Yunus Terlik, Mukaddes Önen
Elektrik Projesi: Osman Eminel
Fotoğraf: Murat Solakoğlu
Proje Başlangıç Yılı: 2006
Proje Bitiş Yılı: 2007
İnşaat Başlangıç Yılı: 2007
İnşaat Bitiş Yılı: 2008
Arsa Alanı: 13.500 m²
Toplam İnşaat Alanı: 7.000 m2